Перейти к контенту
Подбор и сравнение проектов домов от застройщиков Московской области
Подборщик домов
Калькулятор сметы
Калькулятор площади
Форум
Блог
Главная
›
Каталог проектов
›
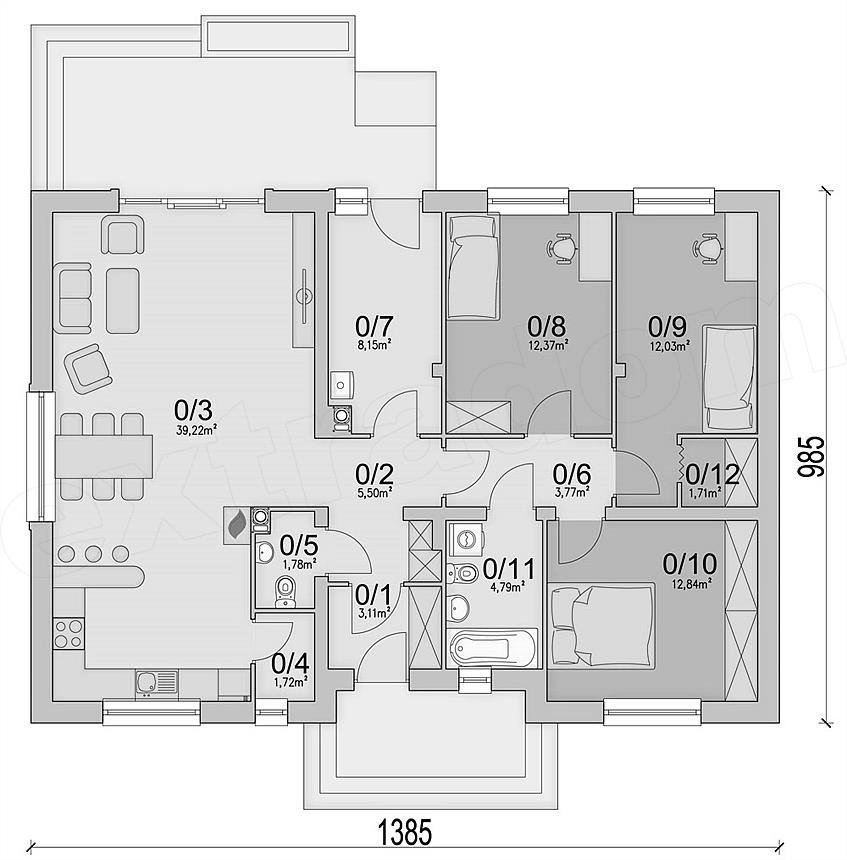
Проект К-69 14 на 10, площадью 136 за 5 457 000 руб
Проект К-69 14 на 10, площадью 136 за 5 457 000 руб
Застройщик: КаркасСтрой
136.0 м²
1 / 2
🏠
136.0 м²
🛏
3 спален
📐
1 этаж
🧱
Каркас
Похожие проекты
Похожие по цене
Похожие по площади
Проект К-99 14 на 10, площадью 136 за 5 457 000 руб
3 спальн. · 1 этаж
от 4 188 800 ₽
→
Добрыня 5
3 спальн. · 1 санузл. · 1 этаж
от 4 188 000 ₽
→
Добрыня 5
3 спальн. · 1 санузл. · 1 этаж
от 4 188 000 ₽
→
Проект одноэтажного дома "Богородский" из бруса
2 спальн. · 2 этаж
от 8 260 996 ₽
→
Строительство каркасного дома 10х9 "Канцлер" под ключ
6 спальн. · 2 санузл. · 2 этаж
от 5 174 000 ₽
→
Дом по проекту «ЗС 139-14» - Золотое Сечение
3 спальн. · 2 санузл.
от 17 000 000 ₽
→
На сайт застройщика