Перейти к контенту
Подбор и сравнение проектов домов от застройщиков Московской области
Подборщик домов
Калькулятор сметы
Калькулятор площади
Форум
Блог
Главная
›
Каталог проектов
›
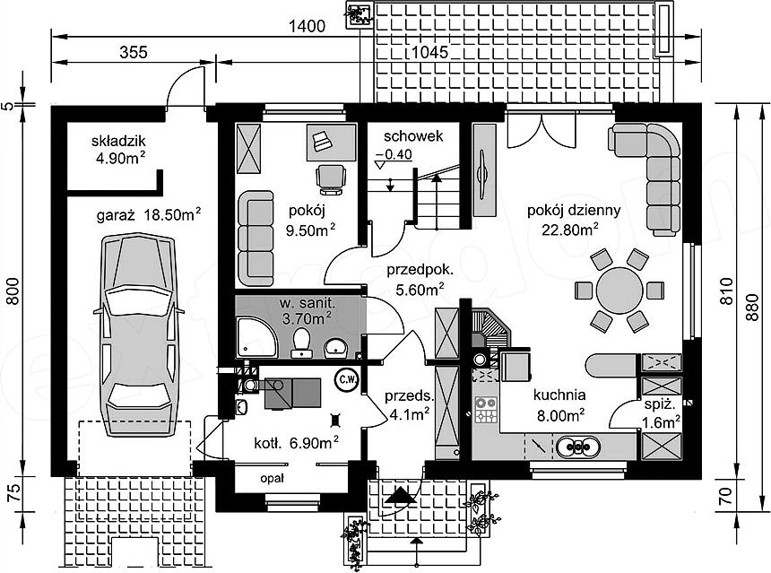
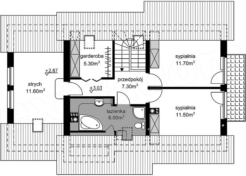
Проект К-70 24 на 9, площадью 430 за 14 364 000 руб
Проект К-70 24 на 9, площадью 430 за 14 364 000 руб
Застройщик: КаркасСтрой
430.0 м²
1 / 3
🏠
430.0 м²
🛏
3 спален
📐
2 этаж
🧱
Каркас
Похожие проекты
Похожие по цене
Похожие по площади
Проект U-172-1P
2 этаж
от 12 040 000 ₽
→
Проект R-172-1P
2 этаж
от 12 039 300 ₽
→
Проект дома «Рагнар»
2 спальн. · 1 этаж
от 12 037 000 ₽
→
Проект К-70 24 на 9, площадью 430 за 14 364 000 руб
3 спальн. · 2 этаж
от 14 364 000 ₽
→
Проект дома C-415-1P
3 этаж
от 30 107 000 ₽
→
Дом из газобетонных блоков С-430 ГБ «Солано»
5 спальн. · 4 санузл. · 2 этаж
от 18 211 000 ₽
→
На сайт застройщика