Перейти к контенту
Подбор и сравнение проектов домов от застройщиков Московской области
Подборщик домов
Калькулятор сметы
Калькулятор площади
Форум
Блог
Главная
›
Каталог проектов
›
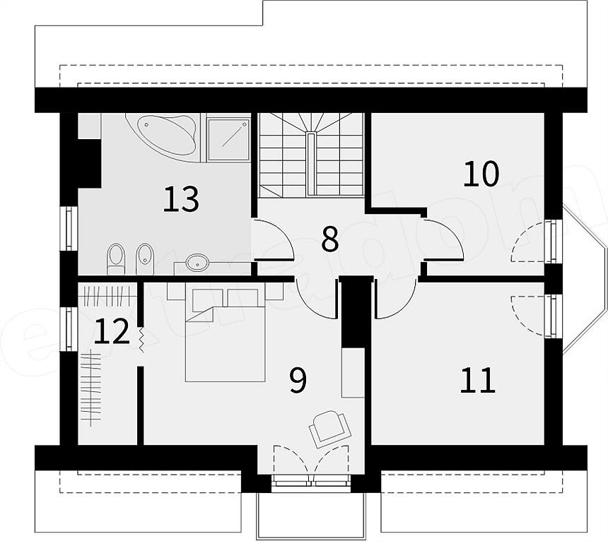
Проект К-83 8 на 8, площадью 134 за 4 434 000 руб
Проект К-83 8 на 8, площадью 134 за 4 434 000 руб
Застройщик: КаркасСтрой
134.0 м²
1 / 3
🏠
134.0 м²
🛏
3 спален
📐
2 этаж
🧱
Каркас
Похожие проекты
Похожие по цене
Похожие по площади
Проект К-103 6 на 11, площадью 134 за 4 459 500 руб
4 спальн. · 2 этаж
от 4 127 200 ₽
→
Проект К-237 8 на 8, площадью 134 за 4 434 000 руб
4 спальн. · 2 этаж
от 4 127 200 ₽
→
Альфа 2
3 спальн. · 1 санузл. · 1 этаж
от 4 129 800 ₽
→
Проект одноэтажного коттеджа "Оливин" из газобетона
2 спальн. · 2 этаж
от 7 872 000 ₽
→
Строительство каркасного дома 10х8 "Сканди" под ключ
4 спальн. · 2 санузл. · 2 этаж
от 6 462 000 ₽
→
Дом по проекту «ЗС 199-24» - Золотое Сечение
2 спальн. · 2 санузл.
от 16 750 000 ₽
→
На сайт застройщика