Перейти к контенту
Подбор и сравнение проектов домов от застройщиков Московской области
Подборщик домов
Калькулятор сметы
Калькулятор площади
Форум
Блог
Главная
›
Каталог проектов
›
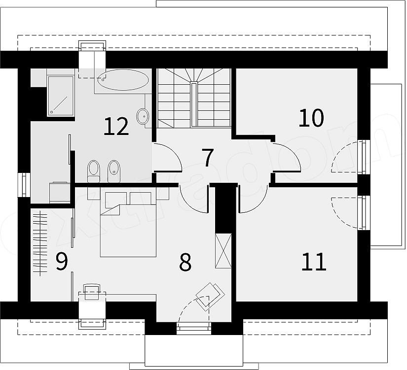
Проект К-85 10 на 8, площадью 143 за 4 881 000 руб
Проект К-85 10 на 8, площадью 143 за 4 881 000 руб
Застройщик: КаркасСтрой
143.0 м²
1 / 3
🏠
143.0 м²
🛏
3 спален
📐
2 этаж
🧱
Каркас
Похожие проекты
Похожие по цене
Похожие по площади
Каркасный дом «Канкун»
5 спальн. · 2 этаж
от 4 401 600 ₽
→
Проект каркасного дома КП-452
1 этаж
от 4 400 000 ₽
→
ПД - 205-5 - Строительство домов из Каркаса, СИП, Бруса под ключ
5 спальн. · 2 санузл. · 2 этаж
от 4 400 000 ₽
→
Проект двухэтажного дома "Ветерок" из бруса
6 спальн. · 2 этаж
от 12 205 352 ₽
→
Проект одноэтажного дома "Сапожок-2" из бруса
2 спальн. · 2 этаж
от 10 240 463 ₽
→
Дом 3 спальни 2 санузла №366
2 этаж
от 8 029 050 ₽
→
На сайт застройщика