Перейти к контенту
Подбор и сравнение проектов домов от застройщиков Московской области
Подборщик домов
Калькулятор сметы
Калькулятор площади
Форум
Блог
Главная
›
Каталог проектов
›
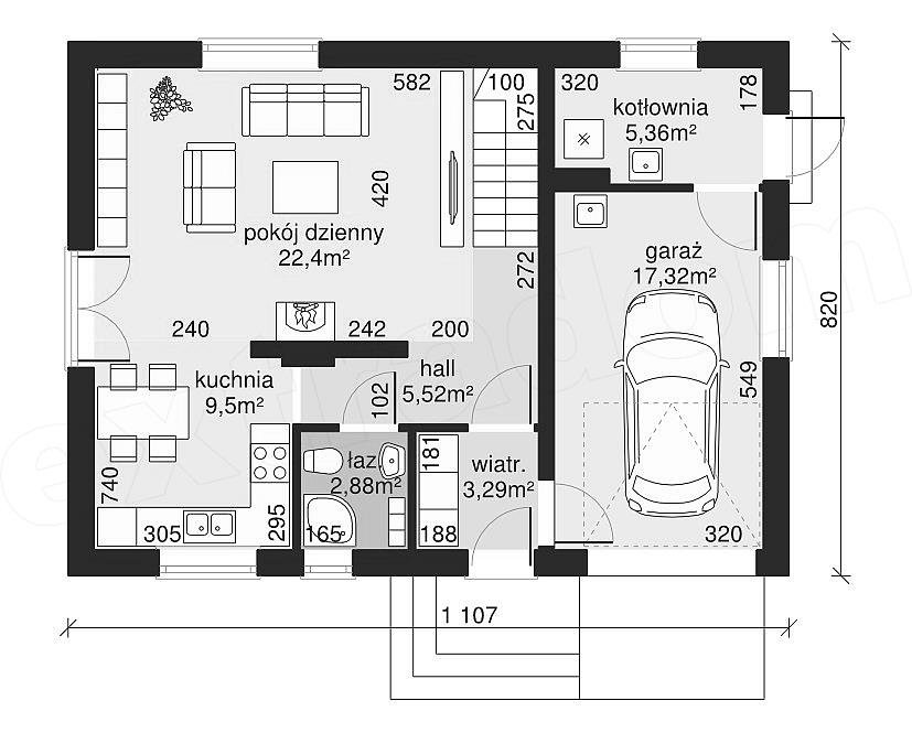
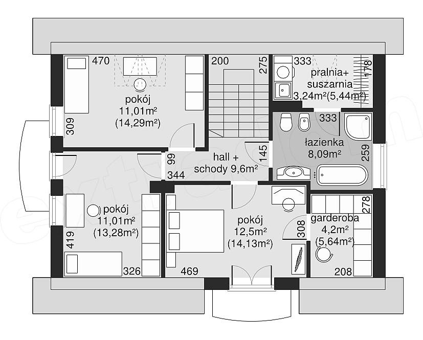
Проект К-86 11 на 8, площадью 182 за 6 036 000 руб
Проект К-86 11 на 8, площадью 182 за 6 036 000 руб
Застройщик: КаркасСтрой
182.0 м²
1 / 3
🏠
182.0 м²
🛏
3 спален
📐
2 этаж
🧱
Каркас
Похожие проекты
Похожие по цене
Похожие по площади
Проект К-124 10 на 9, площадью 182 за 6 061 500 руб
3 спальн. · 2 этаж
от 5 096 000 ₽
→
Проект дома AS-1630
2 этаж
от 5 096 140 ₽
→
Строительство каркасного дома 9х8 "Владимир" под ключ
6 спальн. · 1 санузл. · 2 этаж
от 5 095 000 ₽
→
Проект двухэтажного каркасного дома "Метида"
6 спальн. · 2 этаж
от 13 944 554 ₽
→
Каркасный дом «Волхов
от 9 255 000 ₽
→
Дом по проекту «Дармштадт» - Золотое Сечение
3 спальн. · 3 санузл.
от 22 750 000 ₽
→
На сайт застройщика