Перейти к контенту
Подбор и сравнение проектов домов от застройщиков Московской области
Подборщик домов
Калькулятор сметы
Калькулятор площади
Форум
Блог
Главная
›
Каталог проектов
›
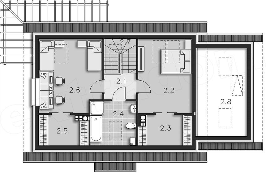
Проект К-89 14 на 8, площадью 222 за 7 422 000 руб
Проект К-89 14 на 8, площадью 222 за 7 422 000 руб
Застройщик: КаркасСтрой
222.0 м²
1 / 3
🏠
222.0 м²
🛏
3 спален
📐
2 этаж
🧱
Каркас
Похожие проекты
Похожие по цене
Похожие по площади
Песня 2
4 спальн. · 1 санузл. · 1 этаж
от 6 214 000 ₽
→
Песня 2
4 спальн. · 1 санузл. · 1 этаж
от 6 214 000 ₽
→
Каркасный дом «Светогорск
от 6 210 000 ₽
→
Проект двухэтажного дома "Марсель" из бруса
5 спальн. · 2 этаж
от 15 369 495 ₽
→
Проект двухэтажного коттеджа "Дачия" из газобетона
2 спальн. · 2 этаж
от 14 915 000 ₽
→
Проект К-89 14 на 8, площадью 222 за 7 422 000 руб
3 спальн. · 2 этаж
от 7 422 000 ₽
→
На сайт застройщика