Перейти к контенту
Подбор и сравнение проектов домов от застройщиков Московской области
Подборщик домов
Калькулятор сметы
Калькулятор площади
Форум
Блог
Главная
›
Каталог проектов
›
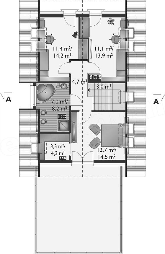
Проект К-92 8 на 18, площадью 293 за 9 747 000 руб
Проект К-92 8 на 18, площадью 293 за 9 747 000 руб
Застройщик: КаркасСтрой
293.0 м²
1 / 3
🏠
293.0 м²
🛏
4 спален
📐
2 этаж
🧱
Каркас
Похожие проекты
Похожие по цене
Похожие по площади
Проект T-117-1P
2 этаж
от 8 204 000 ₽
→
Каркасный дом С-206 КР «Киприда»
5 спальн. · 2 санузл. · 2 этаж
от 8 205 000 ₽
→
Проект каркасного дома с мансардой Бавария 2 M под ключ от компании БАКО
3 спальн. · 2 санузл. · 2 этаж
от 8 200 500 ₽
→
Проект двухэтажного коттеджа "Боат" из газобетона
4 спальн. · 2 этаж
от 13 886 000 ₽
→
Проект К-92 8 на 18, площадью 293 за 9 747 000 руб
4 спальн. · 2 этаж
от 9 747 000 ₽
→
Проект C-301-1K
3 этаж
от 24 025 180 ₽
→
На сайт застройщика