Перейти к контенту
Подбор и сравнение проектов домов от застройщиков Московской области
Подборщик домов
Калькулятор сметы
Калькулятор площади
Форум
Блог
Главная
›
Каталог проектов
›
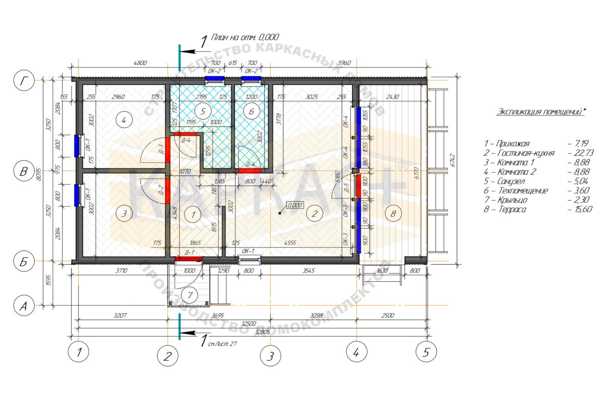
Проект каркасного дома КП-104
Проект каркасного дома КП-104
Застройщик: КАРКАС+
108.93 м²
1 / 3
🏠
108.93 м²
📐
1 этаж
🧱
Каркас
Похожие проекты
Похожие по цене
Похожие по площади
Проект каркасного дома КП-59
1 этаж
от 5 900 000 ₽
→
Проект каркасного дома КП-912
1 этаж
от 5 900 000 ₽
→
Проект К-121 9 на 10, площадью 176 за 5 899 500 руб
4 спальн. · 2 этаж
от 5 899 500 ₽
→
Проект каркасного дома КП-94
2 этаж
от 10 100 000 ₽
→
Строительство каркасного дома 8х8 "Ланта" под ключ
5 спальн. · 2 санузл. · 2 этаж
от 4 782 000 ₽
→
Проект К-14 15 на 7, площадью 109 за 4 281 750 руб
3 спальн. · 1 этаж
от 4 281 750 ₽
→
На сайт застройщика