Перейти к контенту
Подбор и сравнение проектов домов от застройщиков Московской области
Подборщик домов
Калькулятор сметы
Калькулятор площади
Форум
Блог
Главная
›
Каталог проектов
›
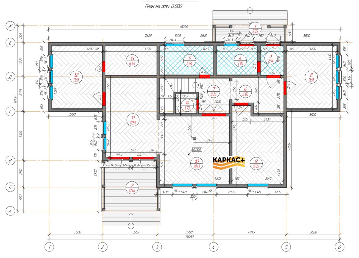
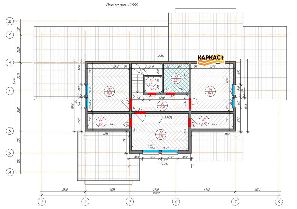
Проект каркасного дома КП-184
Проект каркасного дома КП-184
Застройщик: КАРКАС+
196.11 м²
1 / 3
🏠
196.11 м²
📐
2 этаж
🧱
Каркас
Похожие проекты
Похожие по цене
Похожие по площади
Проект одноэтажного коттеджа "Пава" из газобетона
4 спальн. · 2 этаж
от 12 653 000 ₽
→
Проект дома F-180-1P
2 этаж
от 12 656 000 ₽
→
Кирпичный дом С-278 К «Легенда»
5 спальн. · 2 санузл. · 2 этаж
от 12 641 000 ₽
→
Проект одноэтажного дома "Елисей" из бруса
4 спальн. · 2 этаж
от 12 458 827 ₽
→
Проект R-196-1P
2 этаж
от 13 734 000 ₽
→
Проект одноэтажного каркасного дома "Петерсен"
2 этаж
от 13 944 554 ₽
→
На сайт застройщика