Перейти к контенту
Подбор и сравнение проектов домов от застройщиков Московской области
Подборщик домов
Калькулятор сметы
Калькулятор площади
Форум
Блог
Главная
›
Каталог проектов
›
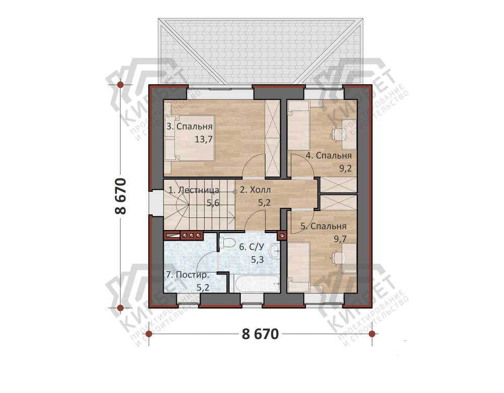
Проект дома из газоблоков 11х9 ГББ-123: цена 6408000 руб.
Проект дома из газоблоков 11х9 ГББ-123: цена 6408000 руб.
Застройщик: Кир-Бет
123.4 м²
1 / 3
🏠
123.4 м²
🛏
3 спален
🚿
2 санузл.
📐
2 этаж
🧱
Газобетон
Похожие проекты
Похожие по цене
Похожие по площади
Проект К-206 15 на 12, площадью 374 за 12 393 000 руб
4 спальн. · 2 этаж
от 10 472 000 ₽
→
Кирпичный дом С-207 К «Бремен»
3 спальн. · 2 санузл. · 3 этаж
от 10 472 000 ₽
→
Проект G-150-1P
2 этаж
от 10 472 000 ₽
→
Проект дома из керамоблоков 11х9 ТКБ-123: цена 6444000 руб.
3 спальн. · 2 санузл. · 2 этаж
от 11 362 000 ₽
→
Канадец 12
4 спальн. · 2 санузл. · 2 этаж
от 4 089 800 ₽
→
Проект каркасный дом Бавария XS под ключ
3 спальн. · 2 санузл. · 2 этаж
от 5 944 800 ₽
→
На сайт застройщика