Перейти к контенту
Подбор и сравнение проектов домов от застройщиков Московской области
Подборщик домов
Калькулятор сметы
Калькулятор площади
Форум
Блог
Главная
›
Каталог проектов
›
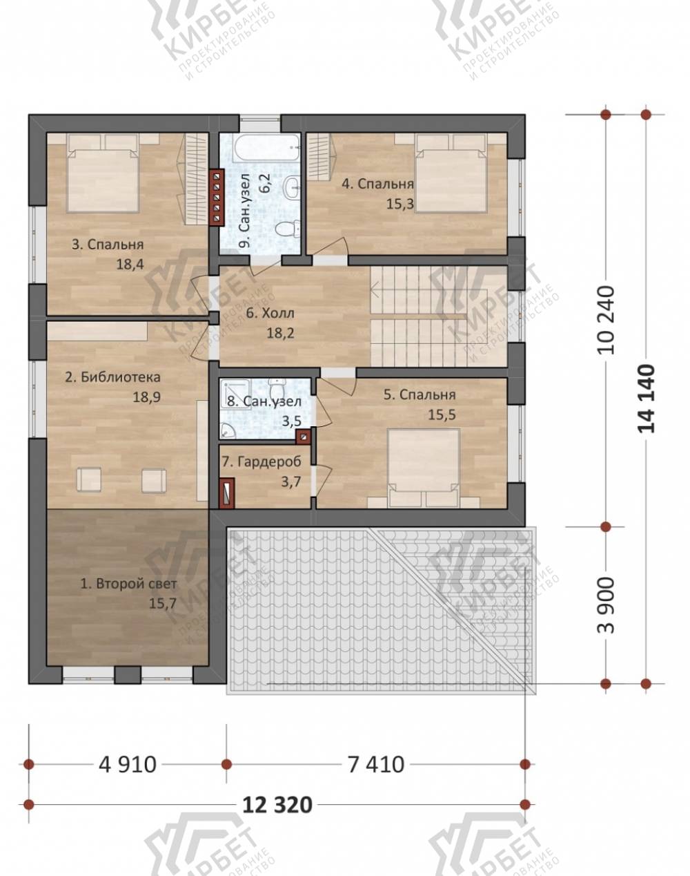
Проект дома из газоблоков 12х14 ГББ-259: цена 10358000 руб.
Проект дома из газоблоков 12х14 ГББ-259: цена 10358000 руб.
Застройщик: Кир-Бет
259.1 м²
1 / 3
🏠
259.1 м²
🛏
5 спален
🚿
4 санузл.
📐
2 этаж
🧱
Газобетон
Похожие проекты
Похожие по цене
Похожие по площади
Проект одноэтажного дома "Волопас" из бруса
3 спальн. · 2 этаж
от 15 250 289 ₽
→
Проект дома из керамоблоков 13х15 ТКБ-248: цена 10018000 руб.
6 спальн. · 3 санузл. · 2 этаж
от 15 252 000 ₽
→
Проект дома «Минден»
4 спальн. · 2 этаж
от 15 254 000 ₽
→
Проект одноэтажного коттеджа "Беркут" из газобетона
2 этаж
от 11 757 000 ₽
→
Проект дома из керамоблоков 12х14 ТКБ-259: цена 9966000 руб.
5 спальн. · 4 санузл. · 2 этаж
от 16 728 000 ₽
→
Проект дома «Рэйкс»
3 спальн. · 1 этаж
от 21 778 000 ₽
→
На сайт застройщика