Перейти к контенту
Подбор и сравнение проектов домов от застройщиков Московской области
Подборщик домов
Калькулятор сметы
Калькулятор площади
Форум
Блог
Главная
›
Каталог проектов
›
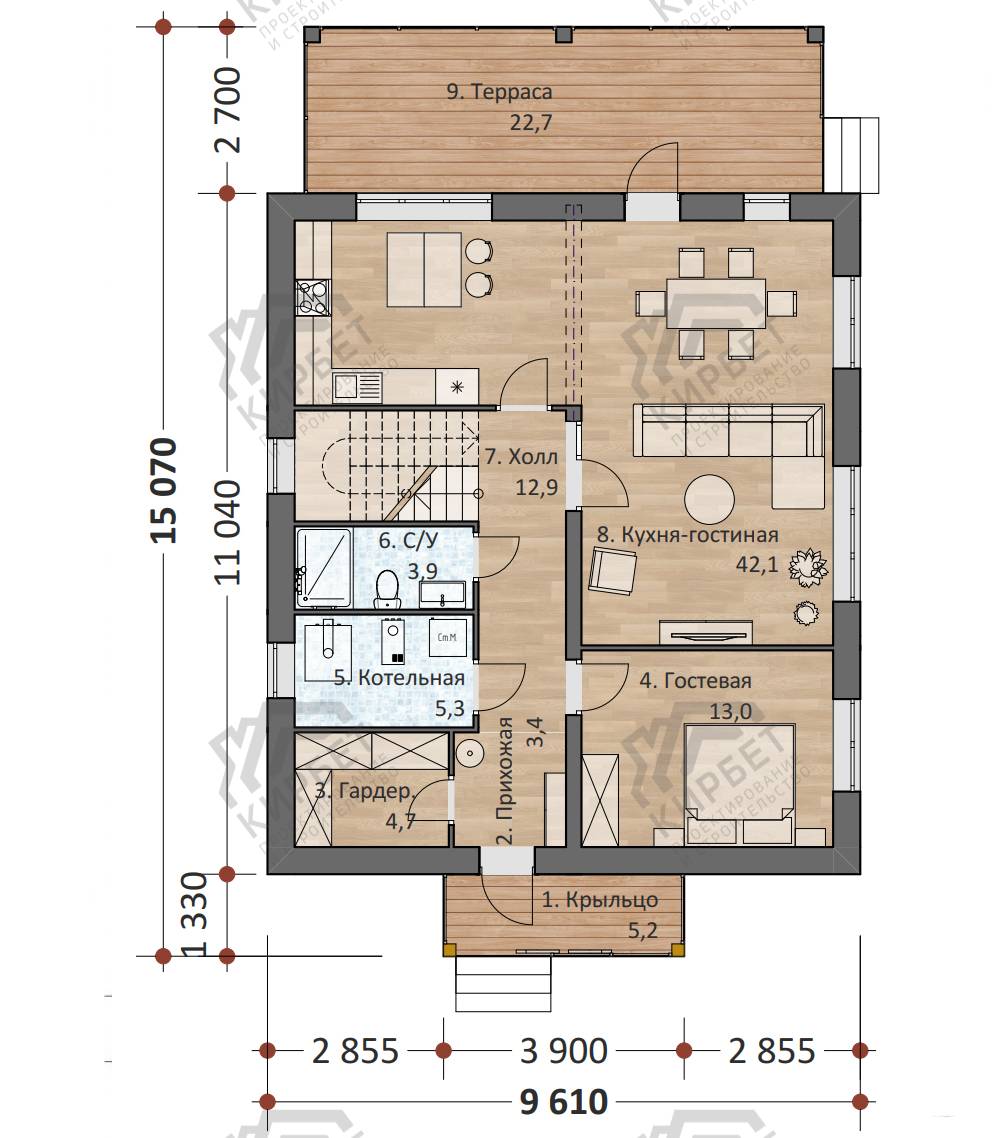
Проект дома из керамоблоков 10х12 ТКБ-198: цена 8311000 руб.
Проект дома из керамоблоков 10х12 ТКБ-198: цена 8311000 руб.
Застройщик: Кир-Бет
197.3 м²
1 / 3
🏠
197.3 м²
🛏
5 спален
🚿
3 санузл.
📐
2 этаж
🧱
Тёплая керамика / керамоблок
Похожие проекты
Похожие по цене
Похожие по площади
Проект дома из керамоблоков 9х12 ТКБ-151: цена 7073000 руб.
5 спальн. · 2 санузл. · 2 этаж
от 12 406 000 ₽
→
Проект T-151-1K
2 этаж
от 12 406 600 ₽
→
Кирпичный дом С-281 К «Альпийский»
5 спальн. · 2 санузл. · 2 этаж
от 12 405 000 ₽
→
Проект дома из газоблоков 10х12 ГББ-198: цена 7855000 руб.
5 спальн. · 3 санузл. · 2 этаж
от 11 361 000 ₽
→
Проект R-179-1P
2 этаж
от 13 810 300 ₽
→
Проект U-198-1P
2 этаж
от 13 815 900 ₽
→
На сайт застройщика