Перейти к контенту
Подбор и сравнение проектов домов от застройщиков Московской области
Подборщик домов
Калькулятор сметы
Калькулятор площади
Форум
Блог
Главная
›
Каталог проектов
›
Проект дома из керамоблоков 17х16 ТКБ-307: цена 10967000 руб.
Проект дома из керамоблоков 17х16 ТКБ-307: цена 10967000 руб.
Застройщик: Кир-Бет
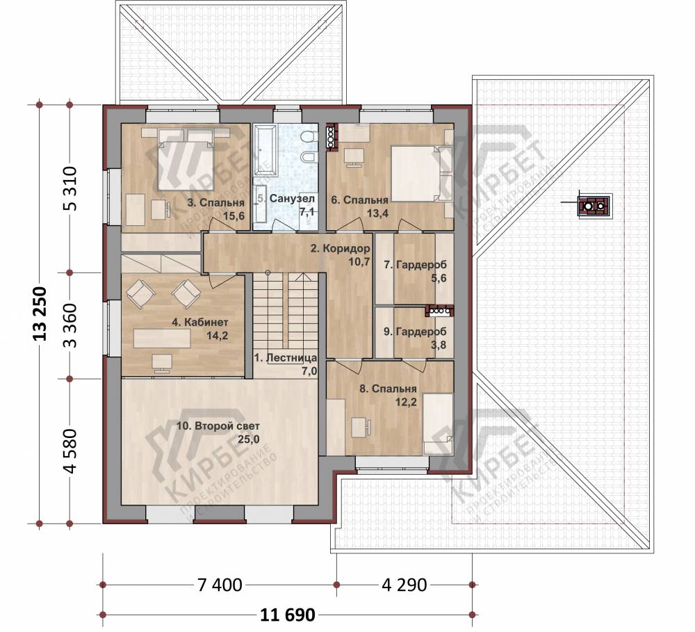
307.0 м²
1 / 3
🏠
307.0 м²
🛏
5 спален
🚿
2 санузл.
📐
2 этаж
🧱
Тёплая керамика / керамоблок
Похожие проекты
Похожие по цене
Похожие по площади
Проект D-126-1D
2 санузл. · 2 этаж
от 18 765 000 ₽
→
Кирпичный дом С-421 К «Онегино»
4 спальн. · 2 санузл. · 2 этаж
от 18 775 000 ₽
→
Проект «Brookland»
5 спальн. · 3 санузл. · 2 этаж
от 18 750 000 ₽
→
Проект дома из газоблоков 17х16 ГББ-307: цена 11223000 руб.
5 спальн. · 2 санузл. · 2 этаж
от 17 081 000 ₽
→
Дом из газобетонных блоков С-307 ГБ «Астра»
5 спальн. · 3 санузл. · 1 этаж
от 13 630 000 ₽
→
Дом из керамических блоков С-307 КЕ «Астра»
5 спальн. · 3 санузл. · 1 этаж
от 13 630 000 ₽
→
На сайт застройщика