Перейти к контенту
Подбор и сравнение проектов домов от застройщиков Московской области
Подборщик домов
Калькулятор сметы
Калькулятор площади
Форум
Блог
Главная
›
Каталог проектов
›
Большой дом с бассейном «Принстон»
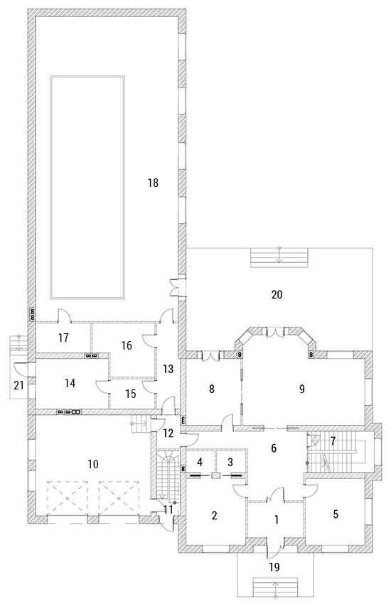
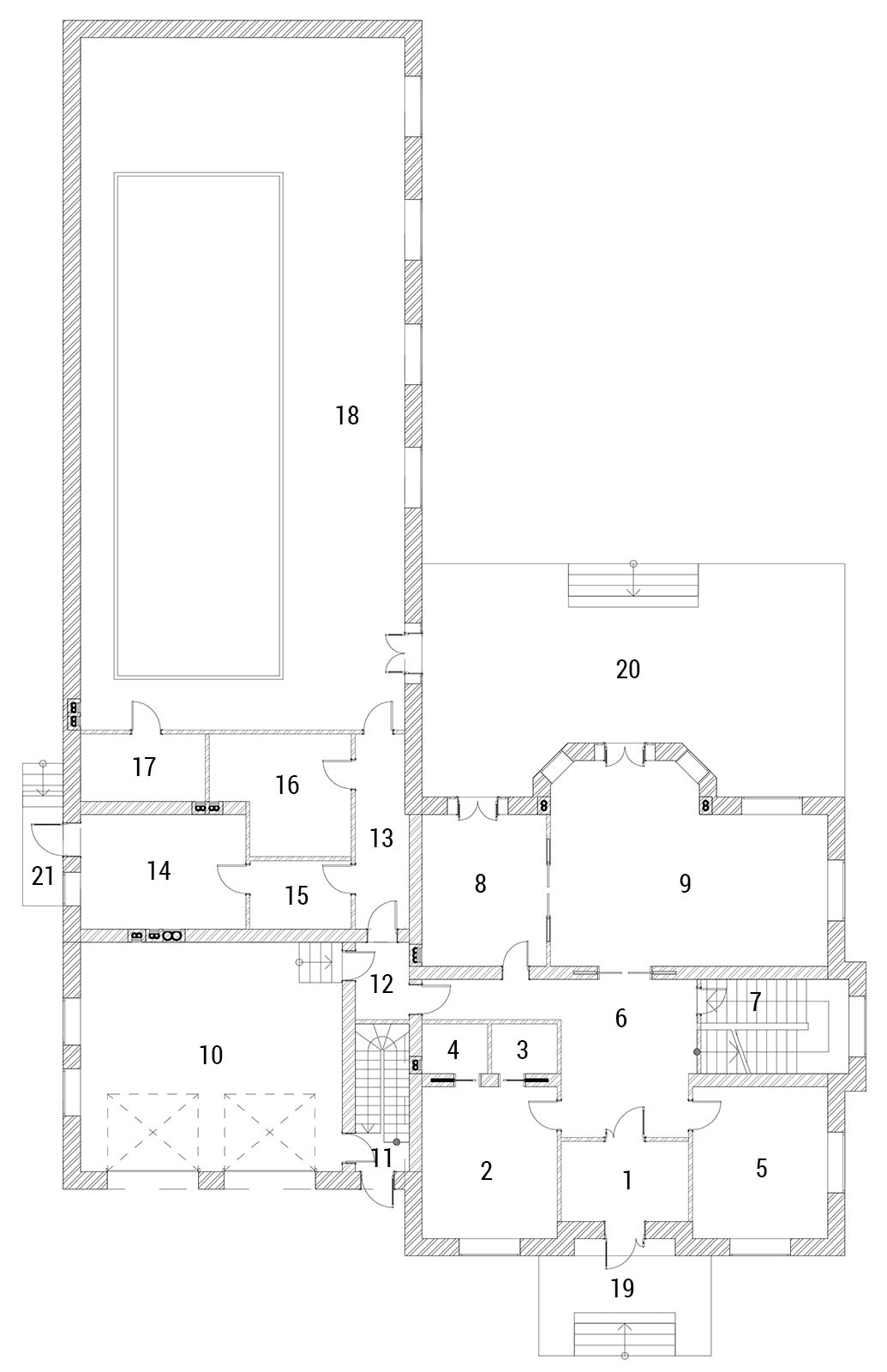
Большой дом с бассейном «Принстон»
Застройщик: ОлимпСтройСервис
753.5 м²
1 / 5
🏠
753.5 м²
🛏
6 спален
🚿
7 санузл.
📐
2 этаж
🧱
Из керамических блоков
Похожие проекты
Похожие по цене
Похожие по площади
Проект R-551-1K
3 этаж
от 45 214 800 ₽
→
Резиденция с гаражом на 4 машины «Митчел»
5 спальн. · 6 санузл. · 2 этаж
от 45 252 000 ₽
→
Проект R-550-1K
3 этаж
от 45 100 000 ₽
→
Проект «Princeton»
6 спальн. · 7 санузл.
от 37 700 000 ₽
→
Проект «Mitchell»
5 спальн. · 6 санузл.
от 37 700 000 ₽
→
Резиденция с гаражом на 4 машины «Митчел»
5 спальн. · 6 санузл. · 2 этаж
от 45 252 000 ₽
→
На сайт застройщика