Перейти к контенту
Подбор и сравнение проектов домов от застройщиков Московской области
Подборщик домов
Калькулятор сметы
Калькулятор площади
Форум
Блог
Главная
›
Каталог проектов
›
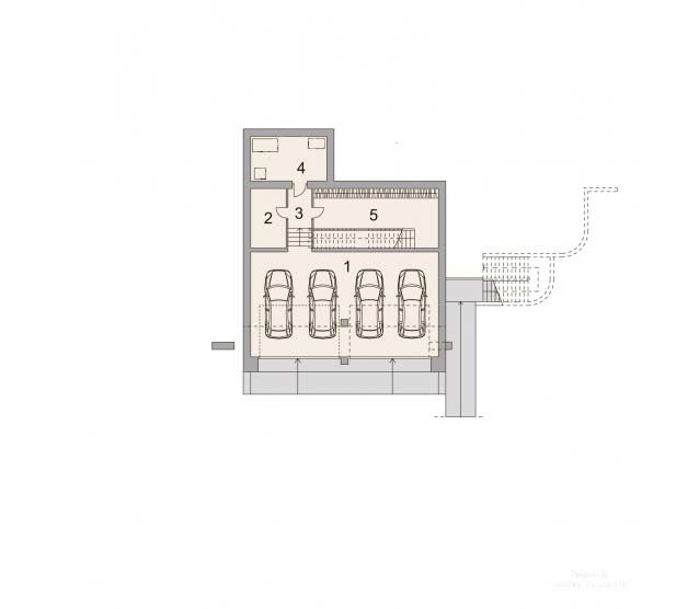
Большой дом с гаражом на 4 машины «Моэн»
Большой дом с гаражом на 4 машины «Моэн»
Застройщик: ОлимпСтройСервис
694.5 м²
1 / 5
🏠
694.5 м²
🛏
3 спален
🚿
4 санузл.
📐
2 этаж
🧱
Из керамических блоков
Похожие проекты
Похожие по цене
Похожие по площади
Двухэтажный дом «Дарвел» с мансардным этажом
5 спальн. · 6 санузл. · 2 этаж
от 41 700 000 ₽
→
Проект R-280-1D
3 этаж
от 41 700 000 ₽
→
Проект G-508-1K
3 этаж
от 41 623 200 ₽
→
Дом по проекту «ЗС 506-19» - Золотое Сечение
4 спальн. · 6 санузл.
от 86 750 000 ₽
→
Проект «Darvel»
5 спальн. · 6 санузл.
от 34 750 000 ₽
→
Двухэтажный дом «Дарвел» с мансардным этажом
5 спальн. · 6 санузл. · 2 этаж
от 41 700 000 ₽
→
На сайт застройщика