Перейти к контенту
Подбор и сравнение проектов домов от застройщиков Московской области
Подборщик домов
Калькулятор сметы
Калькулятор площади
Форум
Блог
Главная
›
Каталог проектов
›
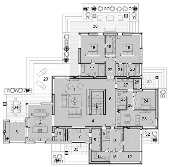
Двухэтажный дом в стиле Райта "Гринвальд"
Двухэтажный дом в стиле Райта "Гринвальд"
Застройщик: ОлимпСтройСервис
452.0 м²
1 / 9
🏠
452.0 м²
🛏
5 спален
🚿
5 санузл.
📐
2 этаж
🧱
Из керамических блоков
Похожие проекты
Похожие по цене
Похожие по площади
Дом по проекту «ЗС 01-15-01» - Золотое Сечение
5 спальн. · 2 санузл.
от 27 125 000 ₽
→
Проект дома D-387-1P
3 этаж
от 27 111 000 ₽
→
Проект W-330-1K
3 этаж
от 27 133 800 ₽
→
Проект «Greenwald»
от 22 600 000 ₽
→
Проект I-451-1K
3 этаж
от 37 014 800 ₽
→
Проект дома «Florence»
3 спальн. · 4 санузл.
от 22 565 000 ₽
→
На сайт застройщика