Перейти к контенту
Подбор и сравнение проектов домов от застройщиков Московской области
Подборщик домов
Калькулятор сметы
Калькулятор площади
Форум
Блог
Главная
›
Каталог проектов
›
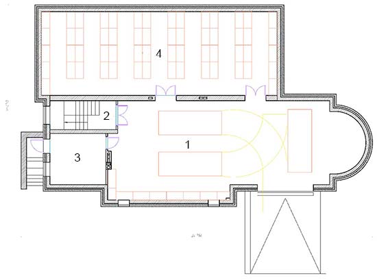
Двухэтажный дом с мансардой «Сендин»
Двухэтажный дом с мансардой «Сендин»
Застройщик: ОлимпСтройСервис
921.0 м²
1 / 9
🏠
921.0 м²
🛏
5 спален
🚿
5 санузл.
📐
2 этаж
🧱
Из керамических блоков
Похожие проекты
Похожие по цене
Похожие по площади
Дом по проекту «ЗС 378-18» - Золотое Сечение
5 спальн. · 5 санузл.
от 55 375 000 ₽
→
Проект S-1385-1K
3 этаж
от 55 416 000 ₽
→
Проект резиденции «Fremont»
5 спальн. · 7 санузл.
от 55 440 000 ₽
→
Проект резиденции «Fremont»
5 спальн. · 7 санузл.
от 55 440 000 ₽
→
Проект резиденции «Fremont»
5 спальн. · 7 санузл.
от 55 440 000 ₽
→
Проект резиденции «Fremont»
5 спальн. · 7 санузл. · 2 этаж
от 55 440 000 ₽
→
На сайт застройщика