Перейти к контенту
Подбор и сравнение проектов домов от застройщиков Московской области
Подборщик домов
Калькулятор сметы
Калькулятор площади
Форум
Блог
Главная
›
Каталог проектов
›
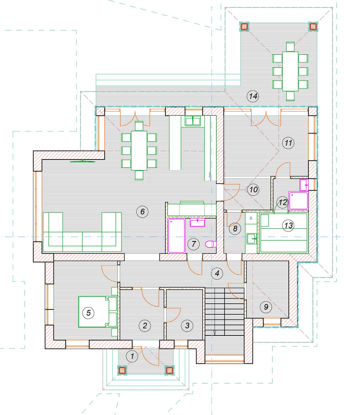
Дом с комбинированным фасадом «Глазго»
Дом с комбинированным фасадом «Глазго»
Застройщик: ОлимпСтройСервис
303.5 м²
1 / 6
🏠
303.5 м²
🛏
4 спален
🚿
3 санузл.
📐
2 этаж
🧱
Из керамических блоков
Похожие проекты
Похожие по цене
Похожие по площади
Проект дома из газоблоков 18х16 ГББ-312: цена 12147000 руб.
5 спальн. · 3 санузл. · 2 этаж
от 18 211 000 ₽
→
Дом из газобетонных блоков С-430 ГБ «Солано»
5 спальн. · 4 санузл. · 2 этаж
от 18 211 000 ₽
→
Дом из керамических блоков С-430 КЕ «Солано»
5 спальн. · 4 санузл. · 2 этаж
от 18 211 000 ₽
→
Проект «Glasgow»
2 этаж
от 15 200 000 ₽
→
Проект «Glasgow»
2 этаж
от 15 200 000 ₽
→
Проект V-303-1P
2 этаж
от 21 256 900 ₽
→
На сайт застройщика