Перейти к контенту
Подбор и сравнение проектов домов от застройщиков Московской области
Подборщик домов
Калькулятор сметы
Калькулятор площади
Форум
Блог
Главная
›
Каталог проектов
›
Коттедж в стиле Хай-Тек «Розас» с комбинированным фасадом
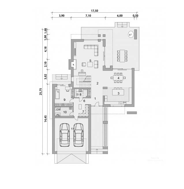
Коттедж в стиле Хай-Тек «Розас» с комбинированным фасадом
Застройщик: ОлимпСтройСервис
327.49 м²
1 / 6
🏠
327.49 м²
🛏
3 спален
🚿
3 санузл.
📐
2 этаж
🧱
Из керамических блоков
Похожие проекты
Похожие по цене
Похожие по площади
Проект дома из керамоблоков 17х18 ТКБ-281: цена 11312000 руб.
4 спальн. · 4 санузл. · 2 этаж
от 19 645 000 ₽
→
Проект T-276-1P
3 этаж
от 19 629 400 ₽
→
Проект К-104 28 на 13, площадью 701 за 23 568 000 руб
4 спальн. · 2 этаж
от 19 628 000 ₽
→
Проект J-328-1K
1 этаж
от 26 846 800 ₽
→
Проект U-327-1K
3 этаж
от 26 846 800 ₽
→
Проект M-327-1D
3 этаж
от 49 090 500 ₽
→
На сайт застройщика