Перейти к контенту
Подбор и сравнение проектов домов от застройщиков Московской области
Подборщик домов
Калькулятор сметы
Калькулятор площади
Форум
Блог
Главная
›
Каталог проектов
›
Коттедж с комбинированным фасадом "Бильбао"
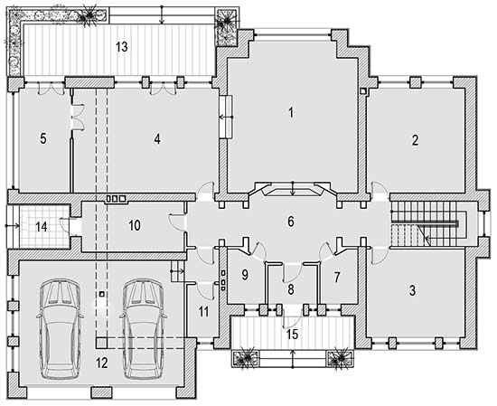
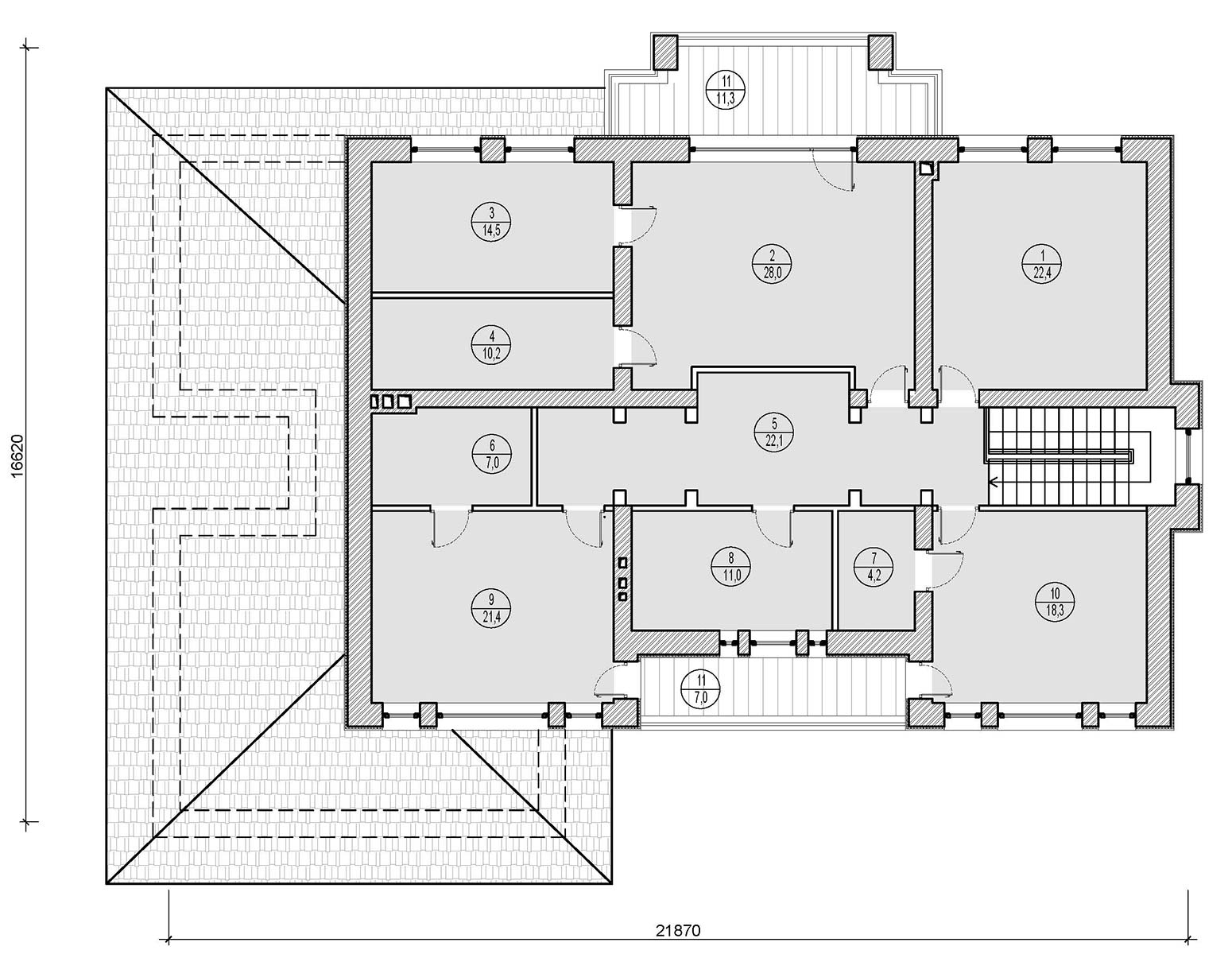
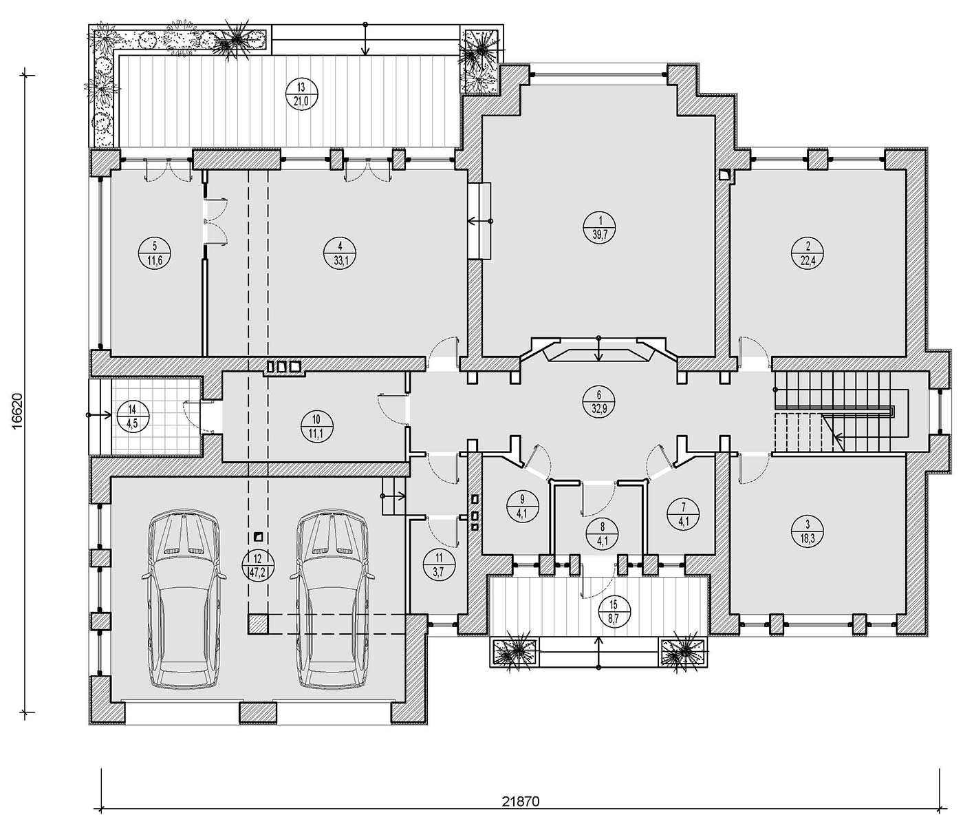
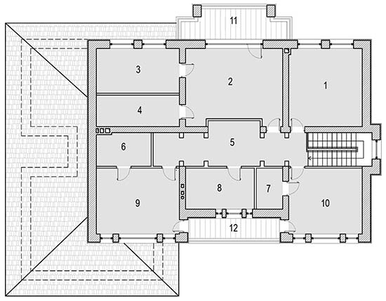
Коттедж с комбинированным фасадом "Бильбао"
Застройщик: ОлимпСтройСервис
445.0 м²
1 / 6
🏠
445.0 м²
🛏
5 спален
🚿
3 санузл.
📐
2 этаж
🧱
Из керамических блоков
Похожие проекты
Похожие по цене
Похожие по площади
Проект D-178-1D
2 этаж
от 26 700 000 ₽
→
Проект J-178-1D
2 этаж
от 26 700 000 ₽
→
Проект U-381-1P
1 этаж
от 26 679 100 ₽
→
Проект «Braemar»
5 спальн. · 6 санузл.
от 22 250 000 ₽
→
Проект U-444-1K
2 этаж
от 36 450 640 ₽
→
Дом по проекту «ЗС 927-21» - Золотое Сечение
4 спальн. · 3 санузл.
от 55 500 000 ₽
→
На сайт застройщика