Перейти к контенту
Подбор и сравнение проектов домов от застройщиков Московской области
Подборщик домов
Калькулятор сметы
Калькулятор площади
Форум
Блог
Главная
›
Каталог проектов
›
Дом из керамических блоков С-185 КЕ «Сиеста»
Дом из керамических блоков С-185 КЕ «Сиеста»
Застройщик: Свод-Строй
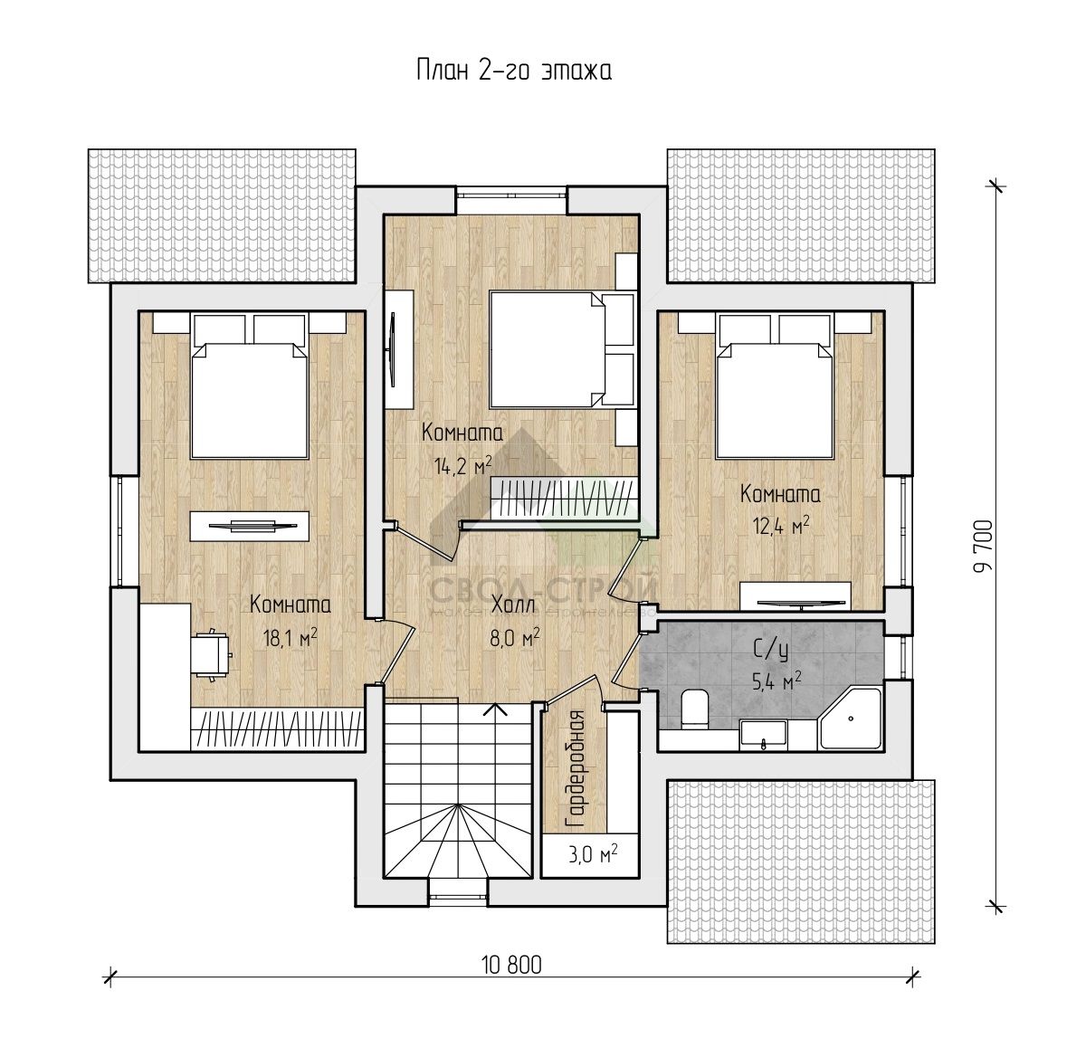
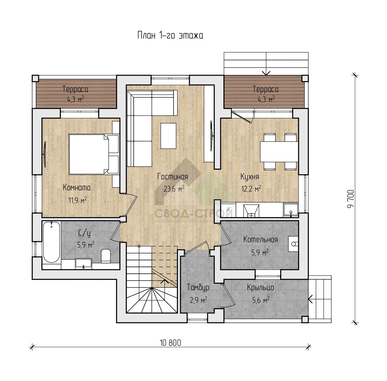
185.0 м²
1 / 3
🏠
185.0 м²
🛏
4 спален
🚿
2 санузл.
📐
2 этаж
🧱
Теплая керамика
Похожие проекты
Похожие по цене
Похожие по площади
Дом из газобетонных блоков С-185 ГБ «Сиеста»
4 спальн. · 2 санузл. · 2 этаж
от 8 157 000 ₽
→
Проект двухэтажного каркасного дома Тетрис L под ключ от компании БАКО
3 спальн. · 2 санузл. · 2 этаж
от 8 157 800 ₽
→
Дом из газобетона "Элкфорд"
3 спальн. · 2 санузл. · 2 этаж
от 8 160 000 ₽
→
Проект одноэтажного каркасного дома "Фигаро"
3 спальн. · 2 этаж
от 13 566 326 ₽
→
Проект К-68 11 на 8, площадью 185 за 6 117 000 руб
3 спальн. · 2 этаж
от 6 117 000 ₽
→
Проект К-68 11 на 8, площадью 185 за 6 117 000 руб
3 спальн. · 2 этаж
от 5 180 000 ₽
→
На сайт застройщика