Перейти к контенту
Подбор и сравнение проектов домов от застройщиков Московской области
Подборщик домов
Калькулятор сметы
Калькулятор площади
Форум
Блог
Главная
›
Каталог проектов
›
Дом из керамических блоков С-232 КЕ «Леон»
Дом из керамических блоков С-232 КЕ «Леон»
Застройщик: Свод-Строй
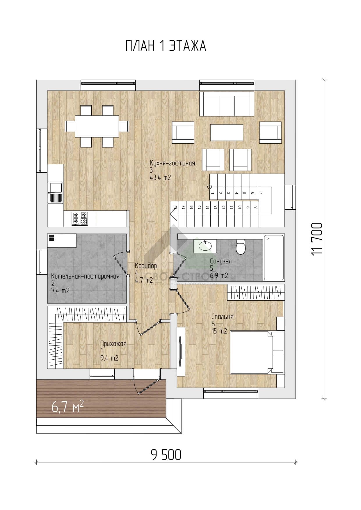
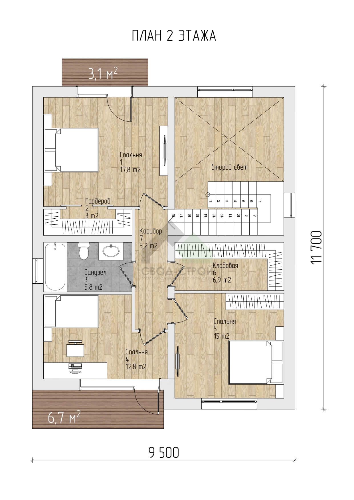
232.0 м²
1 / 3
🏠
232.0 м²
🛏
4 спален
🚿
2 санузл.
📐
2 этаж
🧱
Теплая керамика
Похожие проекты
Похожие по цене
Похожие по площади
Проект T-136-1P
2 этаж
от 9 534 000 ₽
→
Проект одноэтажного коттеджа "Нефрит" из газобетона
4 спальн. · 2 этаж
от 9 553 000 ₽
→
Проект дома W-172-1P
2 этаж
от 9 553 600 ₽
→
Проект двухэтажный 11,5х12м № 346
2 этаж
от 9 902 950 ₽
→
Проект дома 11,5х12м № 346
2 этаж
от 9 902 950 ₽
→
Дом по проекту «ЗС 507-22» - Золотое Сечение
4 спальн. · 2 санузл.
от 29 000 000 ₽
→
На сайт застройщика