Перейти к контенту
Подбор и сравнение проектов домов от застройщиков Московской области
Подборщик домов
Калькулятор сметы
Калькулятор площади
Форум
Блог
Главная
›
Каталог проектов
›
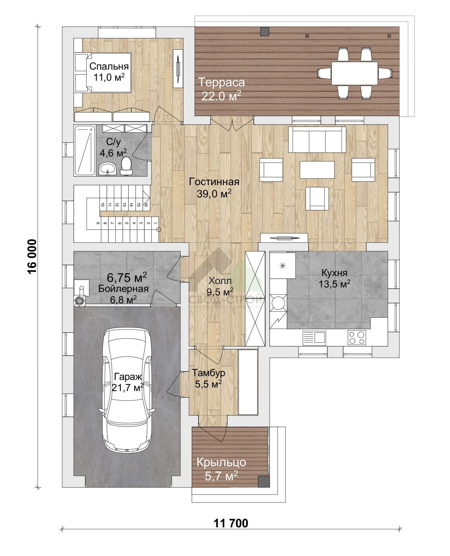
Дом из керамических блоков С-322 КЕ «Ясень»
Дом из керамических блоков С-322 КЕ «Ясень»
Застройщик: Свод-Строй
322.0 м²
1 / 3
🏠
322.0 м²
🛏
4 спален
🚿
4 санузл.
📐
2 этаж
🧱
Теплая керамика
Похожие проекты
Похожие по цене
Похожие по площади
Дом из газобетонных блоков С-322 ГБ «Ясень»
4 спальн. · 4 санузл. · 2 этаж
от 13 127 000 ₽
→
Дом по проекту «ЗС 211-22» - Золотое Сечение
3 спальн. · 2 санузл.
от 13 125 000 ₽
→
Дом по проекту «ЗС 250-22» - Золотое Сечение
1 спальн. · 1 санузл.
от 13 125 000 ₽
→
Дом из газобетонных блоков С-322 ГБ «Ясень»
4 спальн. · 4 санузл. · 2 этаж
от 13 127 000 ₽
→
Каркасный дом С-322 КР «Ясень»
4 спальн. · 4 санузл. · 2 этаж
от 11 889 000 ₽
→
Кирпичный дом С-322 К «Ясень»
4 спальн. · 4 санузл. · 2 этаж
от 14 083 000 ₽
→
На сайт застройщика