Перейти к контенту
Подбор и сравнение проектов домов от застройщиков Московской области
Подборщик домов
Калькулятор сметы
Калькулятор площади
Форум
Блог
Главная
›
Каталог проектов
›
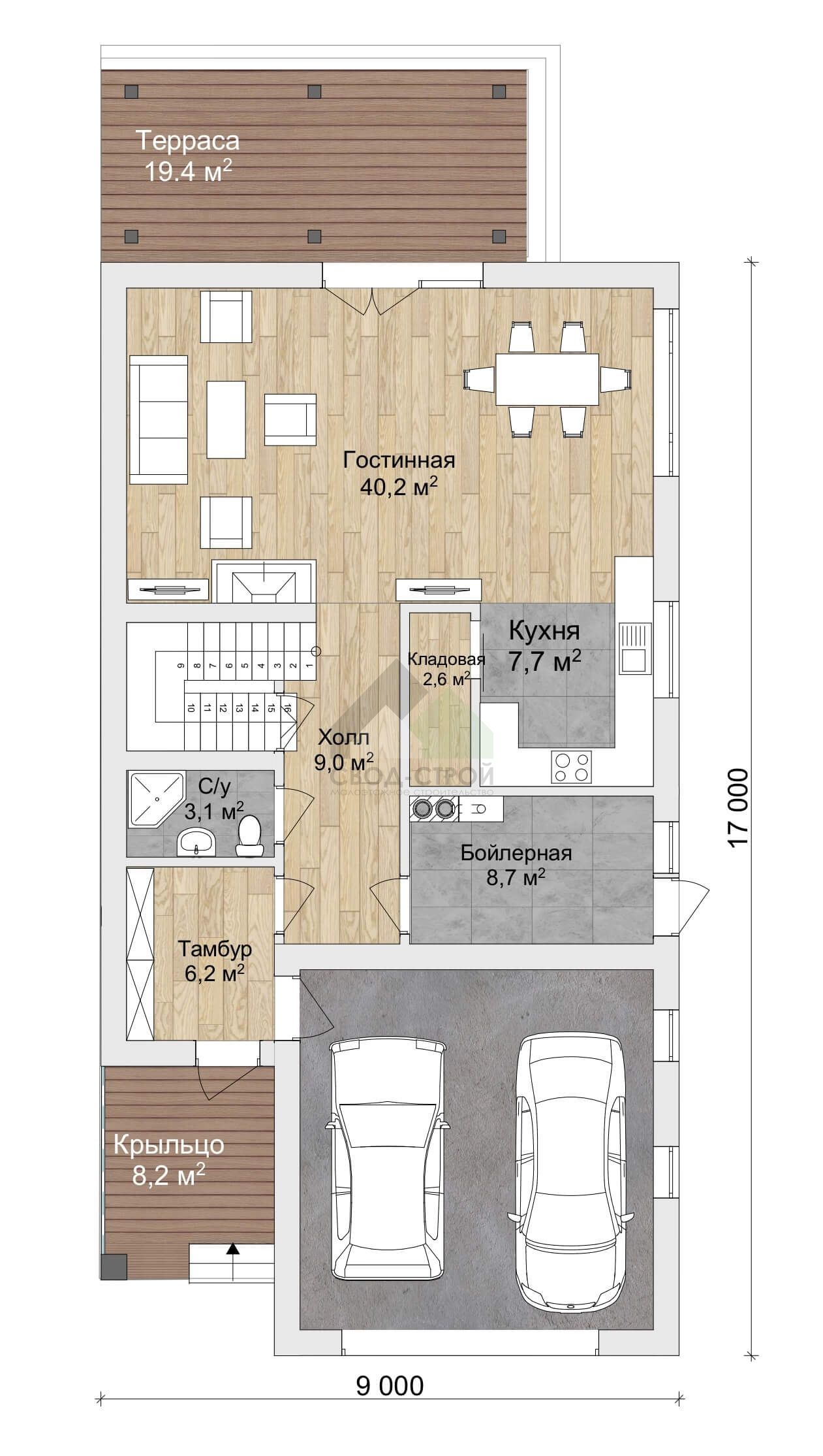
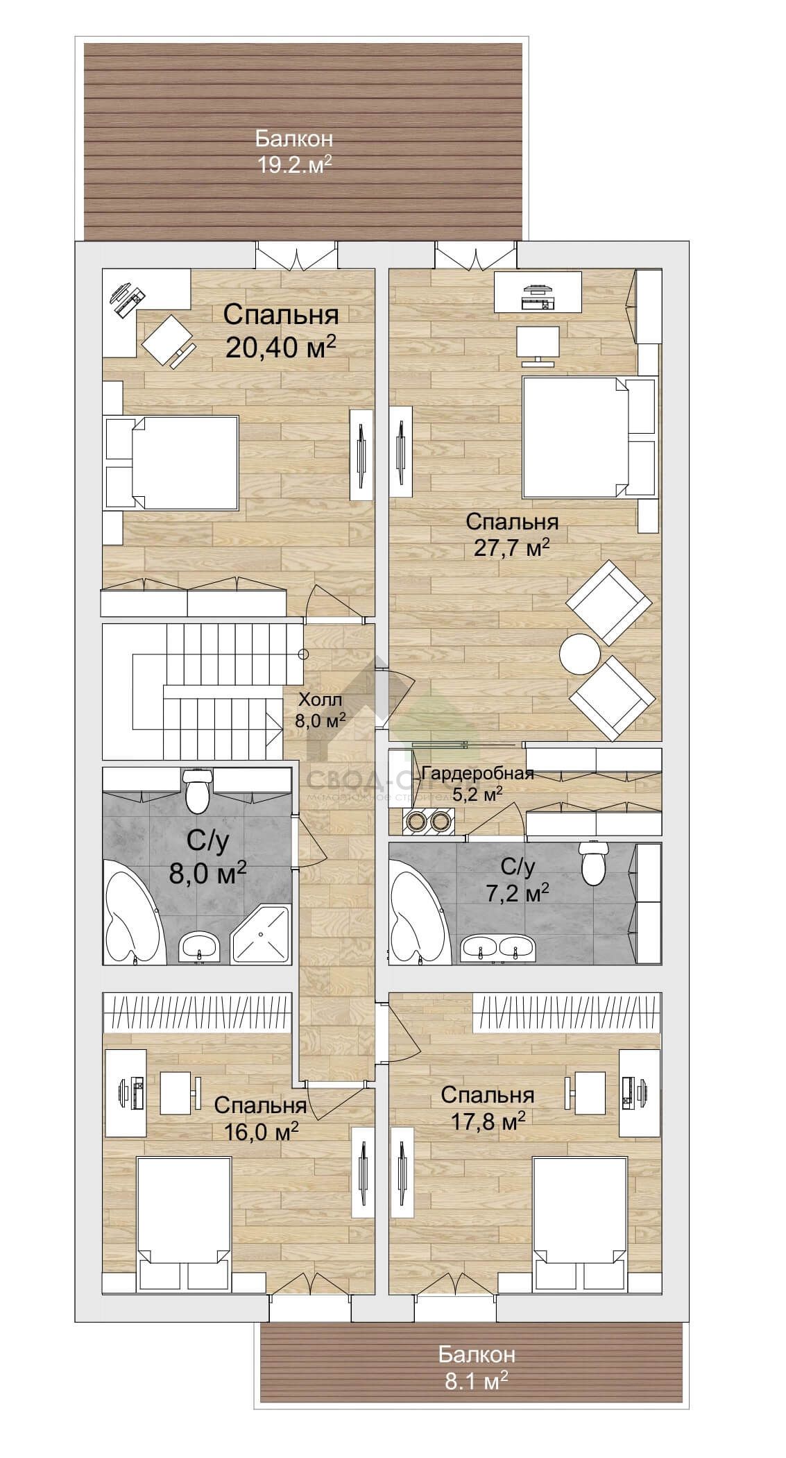
Дом из керамических блоков С-340 КЕ «Нео»
Дом из керамических блоков С-340 КЕ «Нео»
Застройщик: Свод-Строй
339.1 м²
1 / 3
🏠
339.1 м²
🛏
4 спален
🚿
3 санузл.
📐
4 этаж
🧱
Теплая керамика
Похожие проекты
Похожие по цене
Похожие по площади
Проект одноэтажного коттеджа "Арктур" из газобетона
1 этаж
от 13 994 000 ₽
→
Дом из газобетонных блоков С-340 ГБ «Нео»
4 спальн. · 3 санузл. · 4 этаж
от 13 994 000 ₽
→
Каркасный дом «Барвиха
от 14 000 000 ₽
→
Дом из газобетонных блоков С-340 ГБ «Нео»
4 спальн. · 3 санузл. · 4 этаж
от 13 994 000 ₽
→
Кирпичный дом С-340 К «Нео»
4 спальн. · 3 санузл. · 4 этаж
от 14 928 000 ₽
→
Проект «Hoffland»
3 спальн. · 3 санузл.
от 16 950 000 ₽
→
На сайт застройщика