Перейти к контенту
Подбор и сравнение проектов домов от застройщиков Московской области
Подборщик домов
Калькулятор сметы
Калькулятор площади
Форум
Блог
Главная
›
Каталог проектов
›
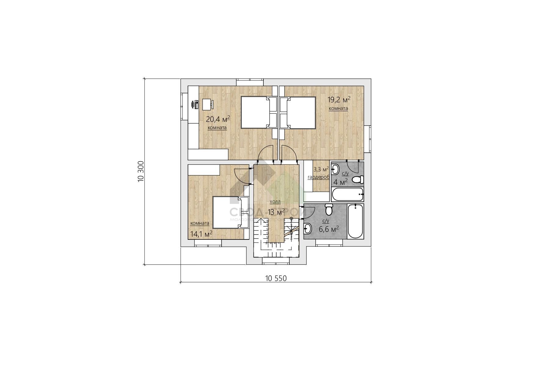
Кирпичный дом С-268 К «Стриж»
Кирпичный дом С-268 К «Стриж»
Застройщик: Свод-Строй
267.4 м²
1 / 3
🏠
267.4 м²
🛏
4 спален
🚿
3 санузл.
📐
4 этаж
🧱
Кирпич
Похожие проекты
Похожие по цене
Похожие по площади
Проект дома E-180-1P
2 этаж
от 12 568 500 ₽
→
Проект дома «Австрия» | ЭкоТех
3 спальн. · 2 санузл. · 2 этаж
от 12 568 000 ₽
→
Проект V-179-1P
2 этаж
от 12 563 600 ₽
→
Дом из газобетонных блоков С-268 ГБ «Стриж»
4 спальн. · 3 санузл. · 4 этаж
от 11 716 000 ₽
→
Дом из керамических блоков С-268 КЕ «Стриж»
4 спальн. · 3 санузл. · 4 этаж
от 11 716 000 ₽
→
Проект S-267-1K
2 этаж
от 21 926 800 ₽
→
На сайт застройщика