Перейти к контенту
Подбор и сравнение проектов домов от застройщиков Московской области
Подборщик домов
Калькулятор сметы
Калькулятор площади
Форум
Блог
Главная
›
Каталог проектов
›
ПД - 116 - Строительство домов из Каркаса, СИП, Бруса под ключ
ПД - 116 - Строительство домов из Каркаса, СИП, Бруса под ключ
Застройщик: Стройград
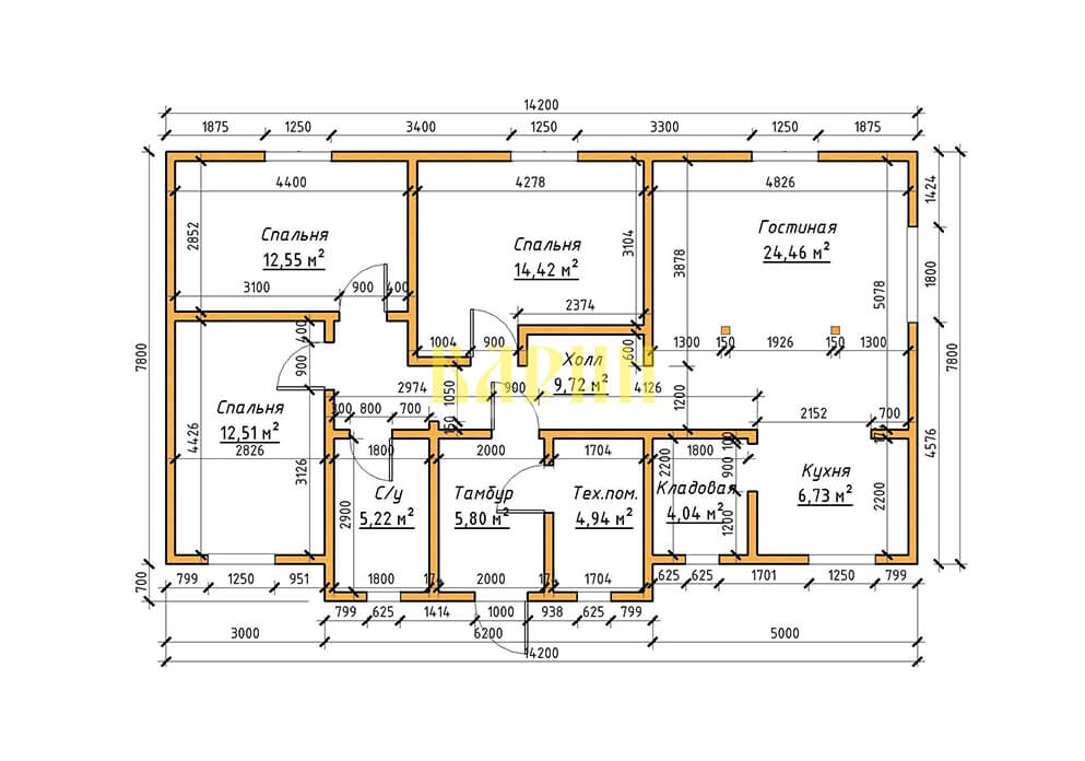
116.0 м²
1 / 2
🏠
116.0 м²
🛏
3 спален
🚿
1 санузл.
📐
1 этаж
Похожие проекты
Похожие по цене
Похожие по площади
ПД - 128 - Строительство домов из Каркаса, СИП, Бруса под ключ
4 спальн. · 2 санузл. · 2 этаж
от 3 080 000 ₽
→
Проект дома AS-2224
1 этаж
от 3 079 770 ₽
→
Проект H-155-1S
2 этаж
от 3 072 412 ₽
→
Проект одноэтажного дома "Булава (одноэтажный)" из бруса
1 спальн. · 1 этаж
от 9 147 148 ₽
→
Проект одноэтажного дома "Золотой ключик-2" из бруса
2 спальн. · 2 этаж
от 8 380 936 ₽
→
Проект одноэтажного дома "Опалево-М1" из бруса
5 спальн. · 2 этаж
от 9 719 832 ₽
→
На сайт застройщика