Перейти к контенту
Подбор и сравнение проектов домов от застройщиков Московской области
Подборщик домов
Калькулятор сметы
Калькулятор площади
Форум
Блог
Главная
›
Каталог проектов
›
ПД - 151-3 - Строительство домов из Каркаса, СИП, Бруса под ключ
ПД - 151-3 - Строительство домов из Каркаса, СИП, Бруса под ключ
Застройщик: Стройград
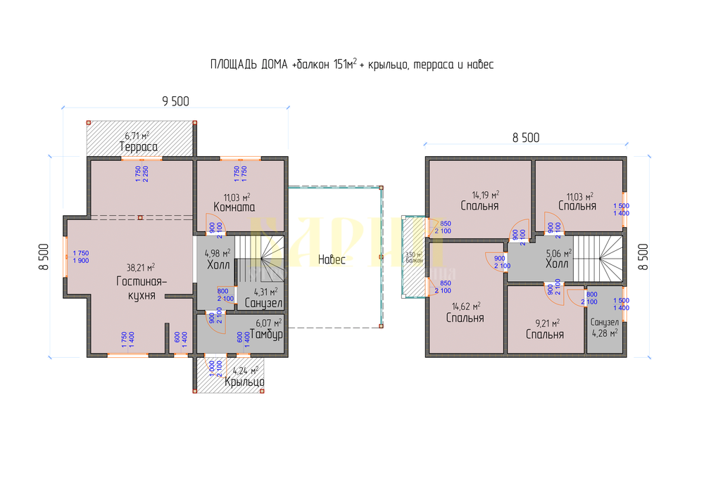
151.0 м²
1 / 2
🏠
151.0 м²
🛏
5 спален
🚿
2 санузл.
📐
2 этаж
Похожие проекты
Похожие по цене
Похожие по площади
Модульный дом «Коммунар
от 3 375 000 ₽
→
Модульный дом «Сколково
от 3 375 000 ₽
→
Проект дома «Пушкино» | ЭкоТех
3 спальн. · 1 санузл. · 2 этаж
от 3 375 000 ₽
→
Каркасный дом «Тихвин
от 7 570 000 ₽
→
Дом по проекту «Мельдорф» - Золотое Сечение
3 спальн. · 2 санузл.
от 18 875 000 ₽
→
ПД - 151-2 - Строительство домов из Каркаса, СИП, Бруса под ключ
3 спальн. · 2 санузл. · 2 этаж
от 3 350 000 ₽
→
На сайт застройщика