Перейти к контенту
Подбор и сравнение проектов домов от застройщиков Московской области
Подборщик домов
Калькулятор сметы
Калькулятор площади
Форум
Блог
Главная
›
Каталог проектов
›
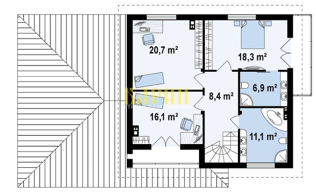
ПД - 225 - Строительство домов из Каркаса, СИП, Бруса под ключ
ПД - 225 - Строительство домов из Каркаса, СИП, Бруса под ключ
Застройщик: Стройград
225.0 м²
1 / 3
🏠
225.0 м²
🛏
3 спален
🚿
2 санузл.
📐
2 этаж
Похожие проекты
Похожие по цене
Похожие по площади
Дом «Воронин» 10х14,5 м
3 спальн. · 1 этаж
от 4 820 000 ₽
→
Проект К-106 8 на 10, площадью 172 за 5 664 000 руб
3 спальн. · 2 этаж
от 4 816 000 ₽
→
Проект К-129 15 на 8, площадью 122 за 4 824 000 руб
3 спальн. · 1 этаж
от 4 824 000 ₽
→
Каркасный дом «Приморск
от 13 185 000 ₽
→
Дом по проекту «Вердер» - Золотое Сечение
3 спальн. · 2 санузл.
от 28 125 000 ₽
→
Проект К-88 15 на 15, площадью 225 за 8 943 750 руб
2 спальн. · 1 этаж
от 8 943 750 ₽
→
На сайт застройщика