Перейти к контенту
Подбор и сравнение проектов домов от застройщиков Московской области
Подборщик домов
Калькулятор сметы
Калькулятор площади
Форум
Блог
Главная
›
Каталог проектов
›
ПД - 227 - Строительство домов из Каркаса, СИП, Бруса под ключ
ПД - 227 - Строительство домов из Каркаса, СИП, Бруса под ключ
Застройщик: Стройград
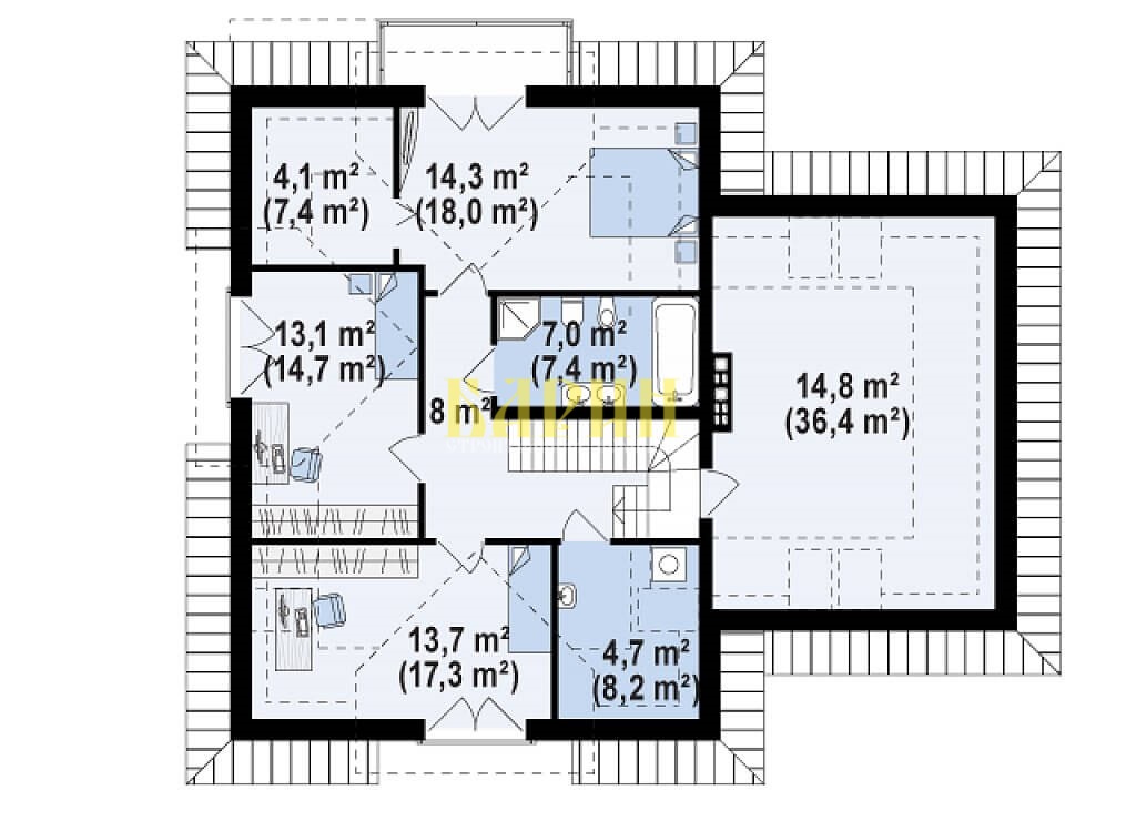
227.0 м²
1 / 3
🏠
227.0 м²
🛏
4 спален
🚿
2 санузл.
📐
2 этаж
Похожие проекты
Похожие по цене
Похожие по площади
Дом из газобетона Проект ГБ-189
3 спальн. · 2 санузл. · 2 этаж
от 4 863 000 ₽
→
Варяг 4
5 спальн. · 3 санузл. · 2 этаж
от 4 854 000 ₽
→
Варяг 4
5 спальн. · 3 санузл. · 2 этаж
от 4 854 000 ₽
→
Дом по проекту «ЗС 905-21» - Золотое Сечение
3 спальн. · 2 санузл.
от 28 375 000 ₽
→
Проект К-87 14 на 8, площадью 227 за 7 557 000 руб
4 спальн. · 2 этаж
от 7 557 000 ₽
→
Проект К-87 14 на 8, площадью 227 за 7 557 000 руб
4 спальн. · 2 этаж
от 6 356 000 ₽
→
На сайт застройщика