Перейти к контенту
Подбор и сравнение проектов домов от застройщиков Московской области
Подборщик домов
Калькулятор сметы
Калькулятор площади
Форум
Блог
Главная
›
Каталог проектов
›
ПД - 246 - Строительство домов из Каркаса, СИП, Бруса под ключ
ПД - 246 - Строительство домов из Каркаса, СИП, Бруса под ключ
Застройщик: Стройград
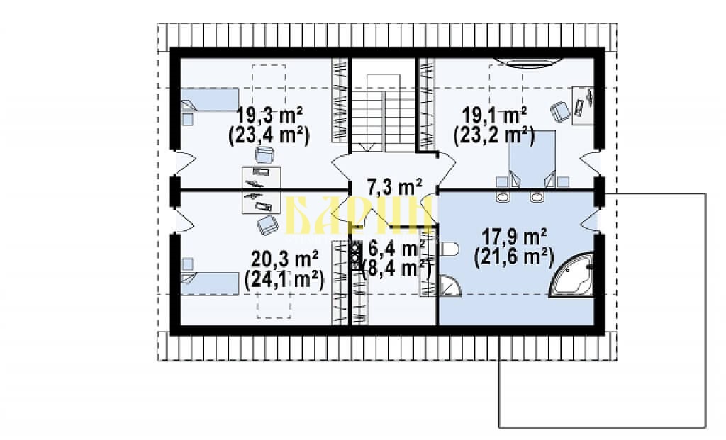
246.0 м²
1 / 3
🏠
246.0 м²
🛏
4 спален
🚿
2 санузл.
📐
2 этаж
Похожие проекты
Похожие по цене
Похожие по площади
Проект одноэтажного дома "Ключик-3" из бруса
2 спальн. · 2 этаж
от 5 268 694 ₽
→
Проект К-53 12 на 11, площадью 94 за 5 274 000 руб
3 спальн. · 1 этаж
от 5 274 000 ₽
→
Проект К-91 6 на 15, площадью 188 за 6 223 500 руб
3 спальн. · 2 этаж
от 5 264 000 ₽
→
Проект одноэтажного каркасного дома "Ио"
3 спальн. · 2 этаж
от 17 603 805 ₽
→
Дом 3 спальни с террасой №373
2 этаж
от 17 768 300 ₽
→
Проект двухэтажный №22079 (373)
2 этаж
от 17 488 300 ₽
→
На сайт застройщика