Перейти к контенту
Подбор и сравнение проектов домов от застройщиков Московской области
Подборщик домов
Калькулятор сметы
Калькулятор площади
Форум
Блог
Главная
›
Каталог проектов
›
ПД - 258 - Строительство домов из Каркаса, СИП, Бруса под ключ
ПД - 258 - Строительство домов из Каркаса, СИП, Бруса под ключ
Застройщик: Стройград
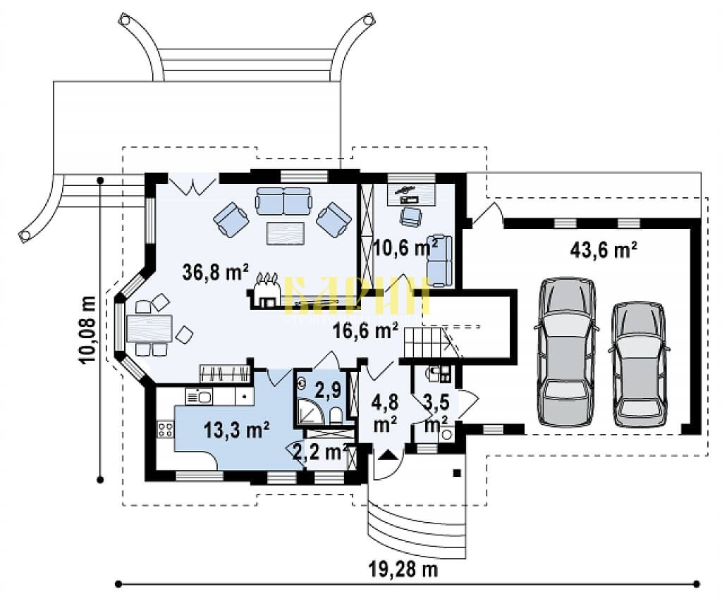
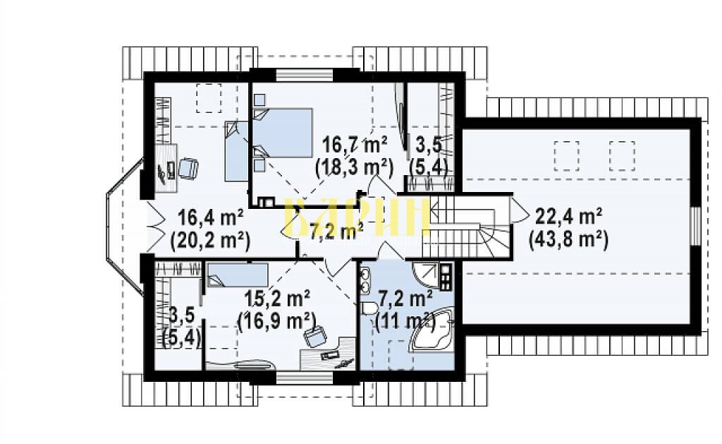
258.0 м²
1 / 3
🏠
258.0 м²
🛏
4 спален
🚿
3 санузл.
📐
2 этаж
Похожие проекты
Похожие по цене
Похожие по площади
Дом «Белов» 8х17 м
3 спальн. · 1 этаж
от 5 530 000 ₽
→
Канадец 33
4 спальн. · 2 санузл. · 2 этаж
от 5 529 800 ₽
→
Проект К-139 10 на 8, площадью 167 за 5 529 000 руб
5 спальн. · 2 этаж
от 5 529 000 ₽
→
Проект К-137 23 на 11, площадью 258 за 10 191 750 руб
4 спальн. · 1 этаж
от 10 191 750 ₽
→
Проект К-137 23 на 11, площадью 258 за 10 191 750 руб
4 спальн. · 1 этаж
от 7 224 000 ₽
→
Проект К-144 13 на 10, площадью 258 за 8 623 500 руб
3 спальн. · 2 этаж
от 8 623 500 ₽
→
На сайт застройщика