Перейти к контенту
Подбор и сравнение проектов домов от застройщиков Московской области
Подборщик домов
Калькулятор сметы
Калькулятор площади
Форум
Блог
Главная
›
Каталог проектов
›
ПД - 259 - Строительство домов из Каркаса, СИП, Бруса под ключ
ПД - 259 - Строительство домов из Каркаса, СИП, Бруса под ключ
Застройщик: Стройград
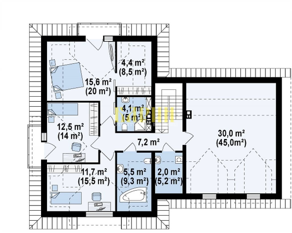
259.0 м²
1 / 3
🏠
259.0 м²
🛏
4 спален
🚿
3 санузл.
📐
2 этаж
Похожие проекты
Похожие по цене
Похожие по площади
Проект К-37 10 на 8, площадью 168 за 5 556 000 руб
3 спальн. · 2 этаж
от 5 556 000 ₽
→
Дом каркасный "Анкор"
2 спальн. · 1 этаж
от 5 560 000 ₽
→
Проект дома AS-2086-2
2 этаж
от 5 560 335 ₽
→
Проект одноэтажного дома "Ганг" из бруса
5 спальн. · 2 этаж
от 16 967 855 ₽
→
Дом по проекту «ЗС 706-23» - Золотое Сечение
4 спальн. · 2 санузл.
от 32 375 000 ₽
→
Проект К-168 12 на 11, площадью 259 за 8 676 000 руб
4 спальн. · 2 этаж
от 8 676 000 ₽
→
На сайт застройщика