Перейти к контенту
Подбор и сравнение проектов домов от застройщиков Московской области
Подборщик домов
Калькулятор сметы
Калькулятор площади
Форум
Блог
Главная
›
Каталог проектов
›
ПД - 75 - Строительство домов из Каркаса, СИП, Бруса под ключ
ПД - 75 - Строительство домов из Каркаса, СИП, Бруса под ключ
Застройщик: Стройград
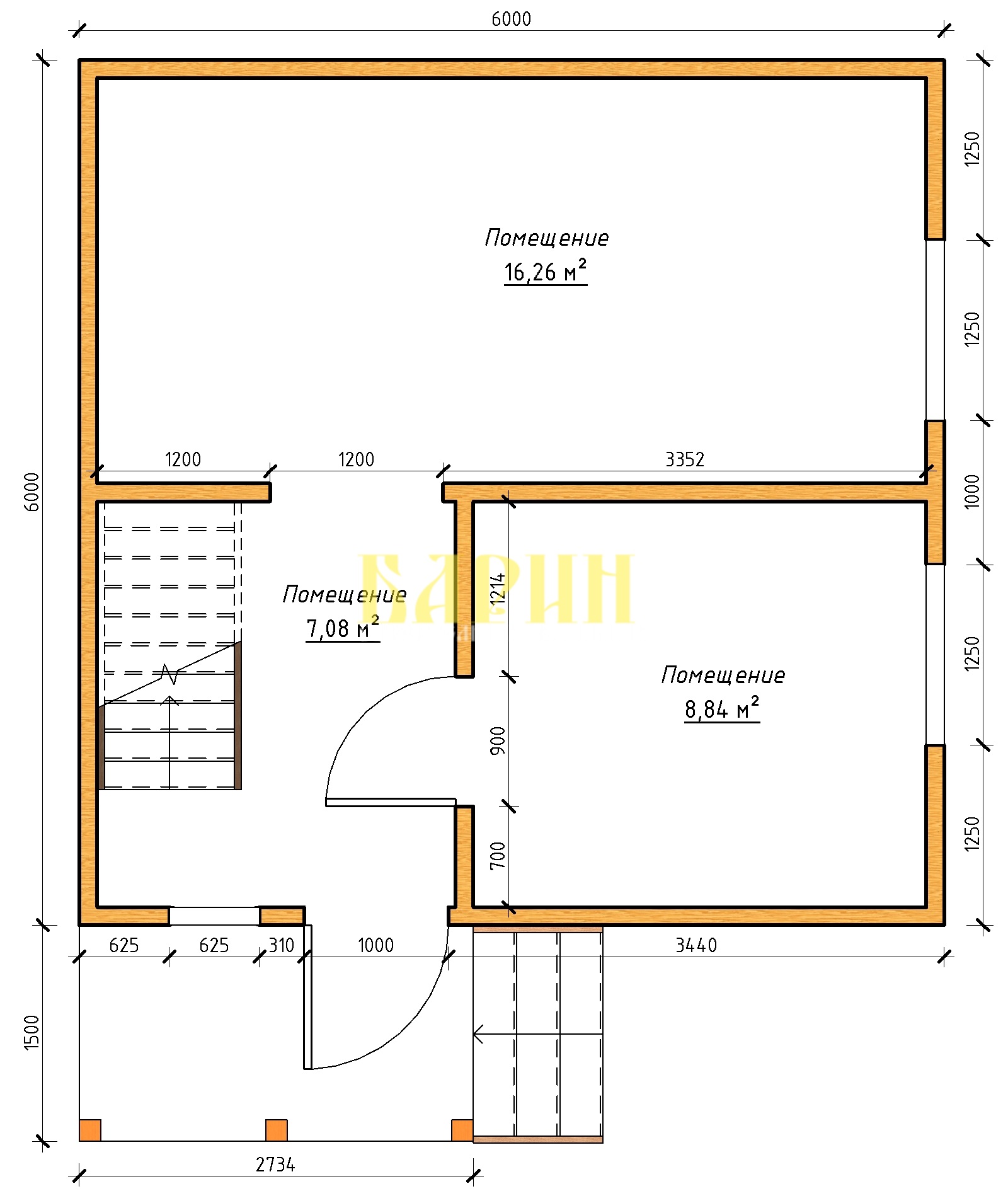
72.0 м²
1 / 3
🏠
72.0 м²
🛏
2 спален
🚿
1 санузл.
📐
2 этаж
Похожие проекты
Похожие по цене
Похожие по площади
Дом «Максимов» 6х9 м
2 спальн. · 1 этаж
от 2 180 000 ₽
→
Каркасный дом 8x7.5 Проект "Жадеит"
3 спальн. · 1 санузл. · 2 этаж
от 2 179 000 ₽
→
Каркасная баня 6x9 Проект "Еремеевит"
1 санузл. · 1 этаж
от 2 166 000 ₽
→
Строительство каркасного дома 10,3х8,15 "Барни" под ключ
3 спальн. · 1 санузл. · 1 этаж
от 3 853 000 ₽
→
Каркасный дом «Лебяжье
от 4 220 000 ₽
→
Каркасный дом 7x6 Проект "Авантюрин"
2 спальн. · 1 санузл. · 2 этаж
от 1 782 000 ₽
→
На сайт застройщика