Перейти к контенту
Подбор и сравнение проектов домов от застройщиков Московской области
Подборщик домов
Калькулятор сметы
Калькулятор площади
Форум
Блог
Главная
›
Каталог проектов
›
Деревянный дом «Мурманск» | ЭкоТех
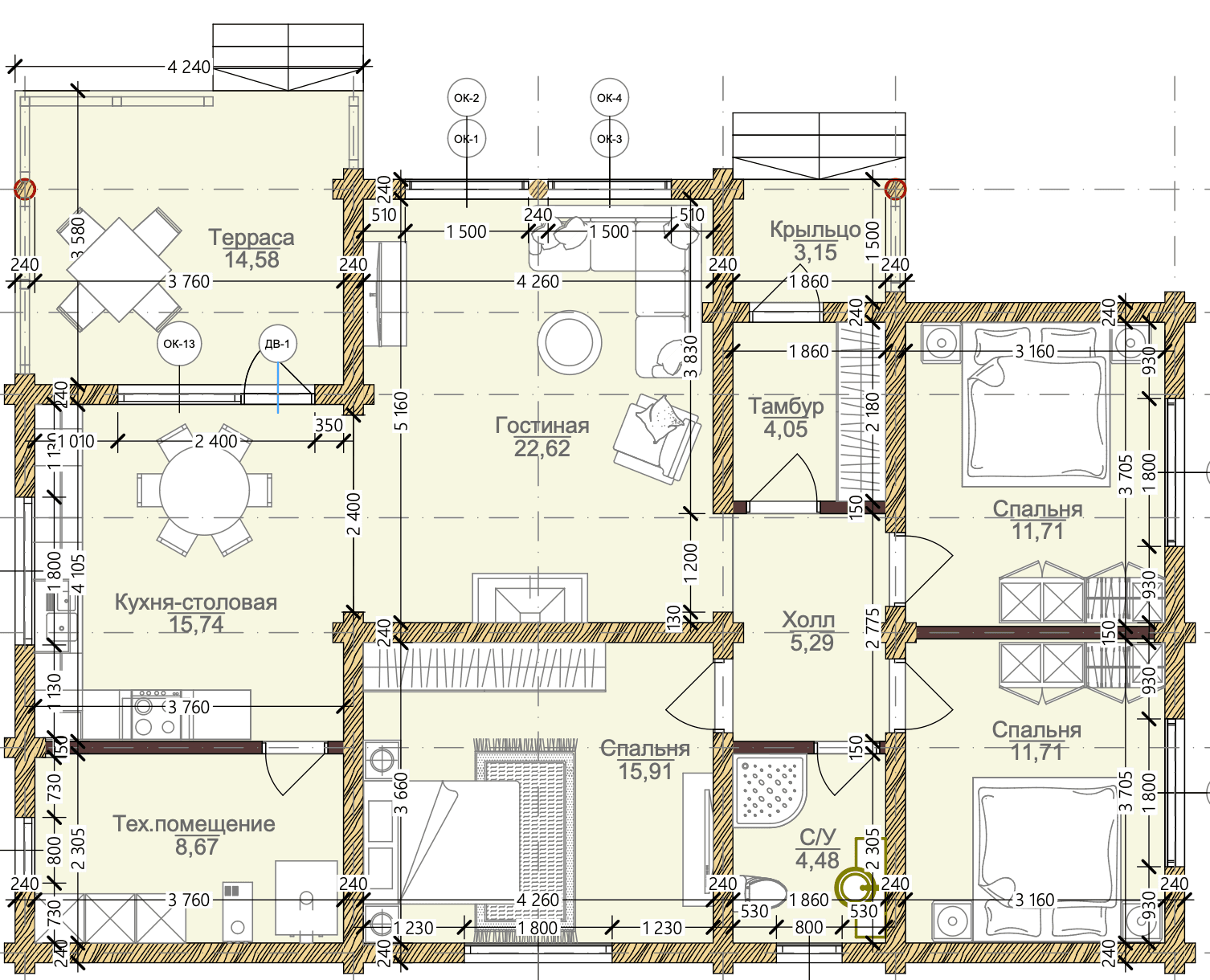
Деревянный дом «Мурманск» | ЭкоТех
Застройщик: Эко-Тех
118.0 м²
1 / 2
🏠
118.0 м²
🛏
3 спален
🚿
1 санузл.
📐
1 этаж
🧱
Оцилиндрованное бревно
Похожие проекты
Похожие по цене
Похожие по площади
Проект К-130 8 на 8, площадью 131 за 4 353 000 руб
4 спальн. · 2 этаж
от 4 034 800 ₽
→
Проект К-82 10 на 7, площадью 131 за 4 429 500 руб
3 спальн. · 2 этаж
от 4 034 800 ₽
→
Проект N-058-1P
1 этаж
от 4 032 000 ₽
→
Проект одноэтажного дома "Дак" из бруса
4 спальн. · 2 этаж
от 8 702 414 ₽
→
Проект одноэтажного каркасного дома "Датчанин"
4 спальн. · 2 этаж
от 8 977 093 ₽
→
Проект одноэтажного дома с террасой Flat-01-118 м² — Домострой
3 спальн. · 1 санузл. · 1 этаж
от 10 593 000 ₽
→
На сайт застройщика