Перейти к контенту
Подбор и сравнение проектов домов от застройщиков Московской области
Подборщик домов
Калькулятор сметы
Калькулятор площади
Форум
Блог
Главная
›
Каталог проектов
›
Деревянный дом «Наро-Фоминск» | ЭкоТех
Деревянный дом «Наро-Фоминск» | ЭкоТех
Застройщик: Эко-Тех
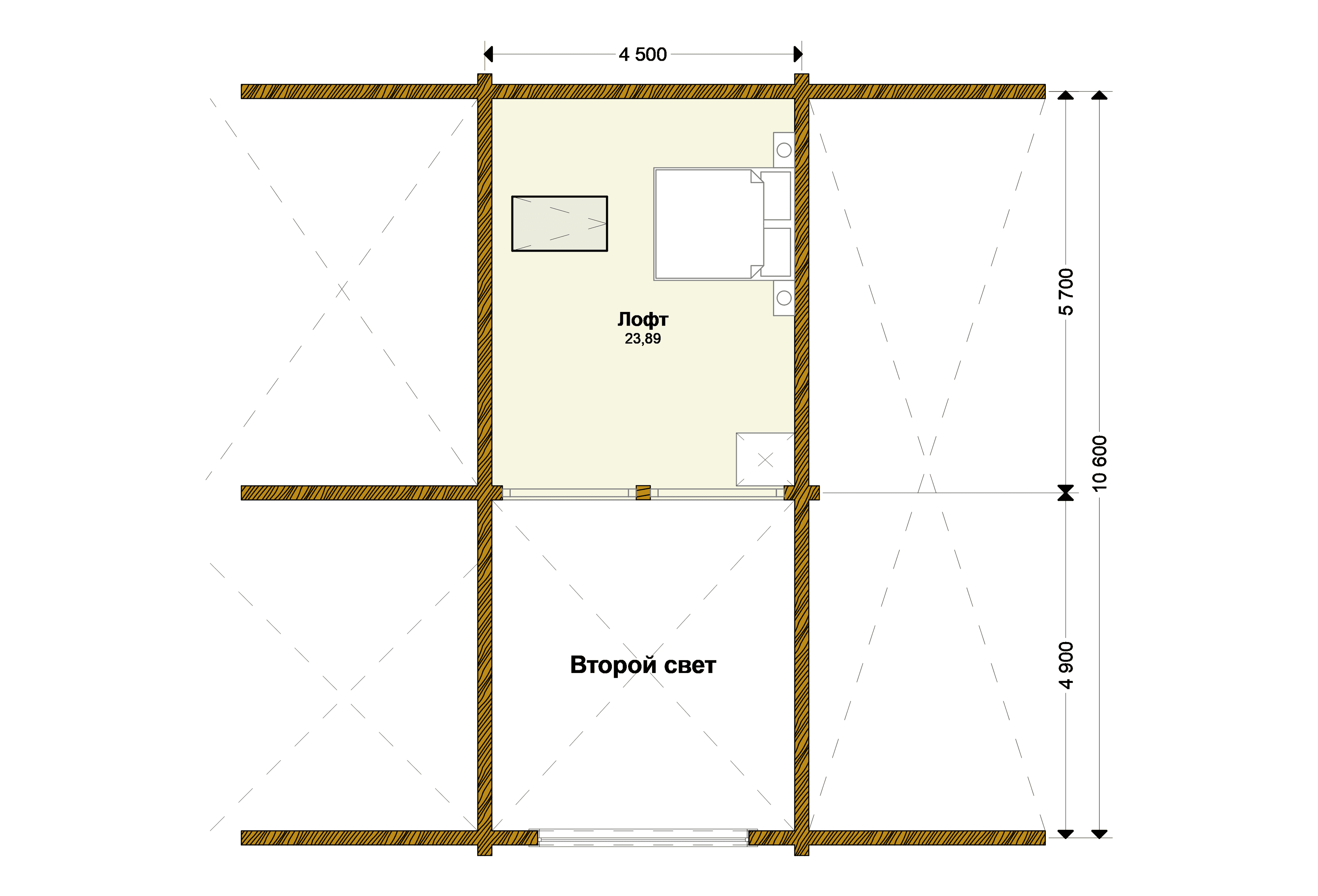
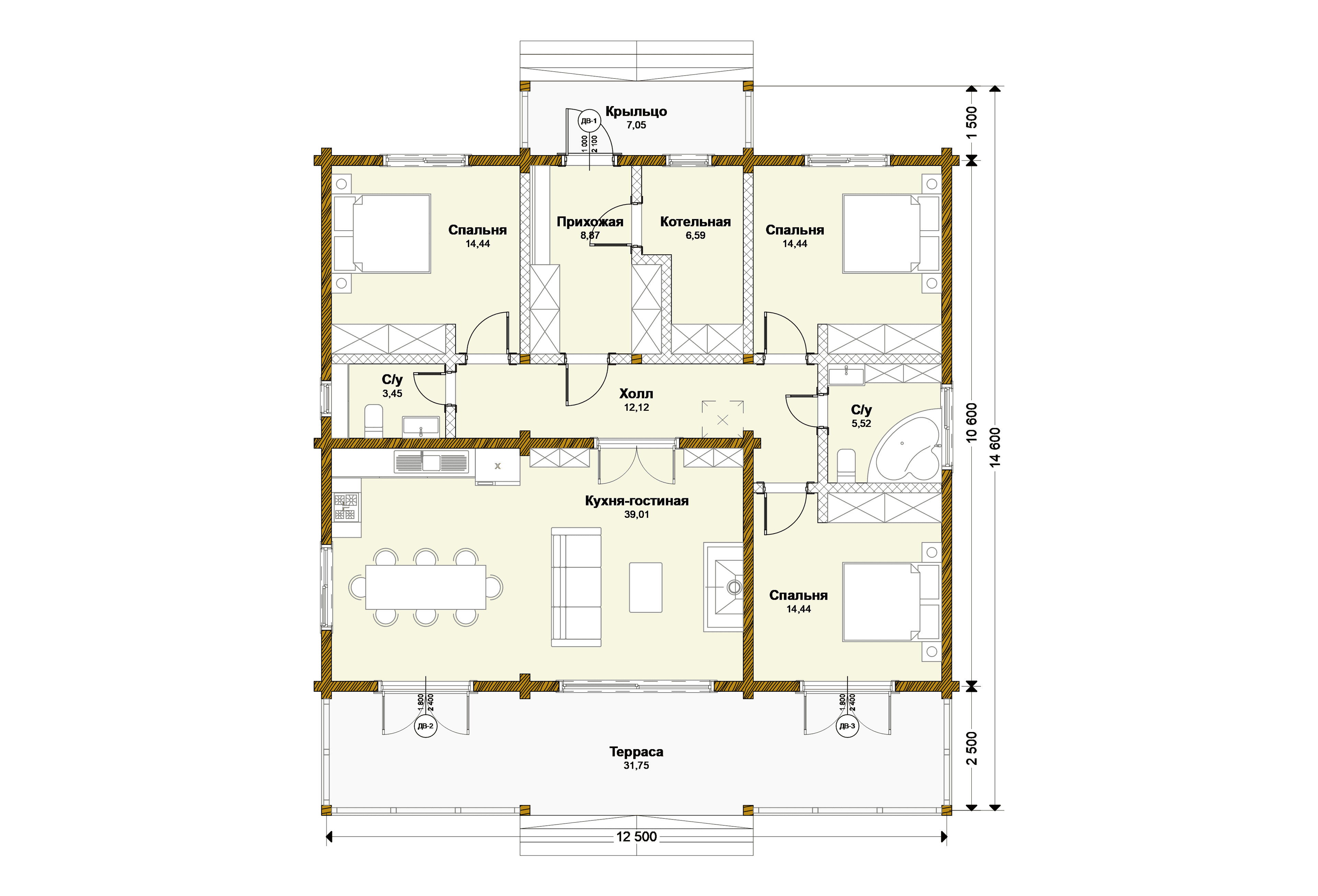
195.0 м²
1 / 3
🏠
195.0 м²
🛏
4 спален
🚿
2 санузл.
📐
2 этаж
🧱
Клееный брус
Похожие проекты
Похожие по цене
Похожие по площади
Проект двухэтажного коттеджа "Сандал" из газобетона
5 спальн. · 2 этаж
от 10 024 000 ₽
→
Проект одноэтажного коттеджа "Твикс" из газобетона
4 спальн. · 2 этаж
от 10 031 000 ₽
→
Проект одноэтажного коттеджа "Ясная поляна" из газобетона
4 спальн. · 2 этаж
от 10 034 000 ₽
→
Дом по проекту «ЗС 42-16» - Золотое Сечение
3 спальн. · 3 санузл.
от 24 375 000 ₽
→
Дом по проекту «ЗС 5-17» - Золотое Сечение
4 спальн. · 2 санузл.
от 24 375 000 ₽
→
Проект К-149 11 на 9, площадью 195 за 6 527 250 руб
4 спальн. · 2 этаж
от 6 527 250 ₽
→
На сайт застройщика