Перейти к контенту
Подбор и сравнение проектов домов от застройщиков Московской области
Подборщик домов
Калькулятор сметы
Калькулятор площади
Форум
Блог
Главная
›
Каталог проектов
›
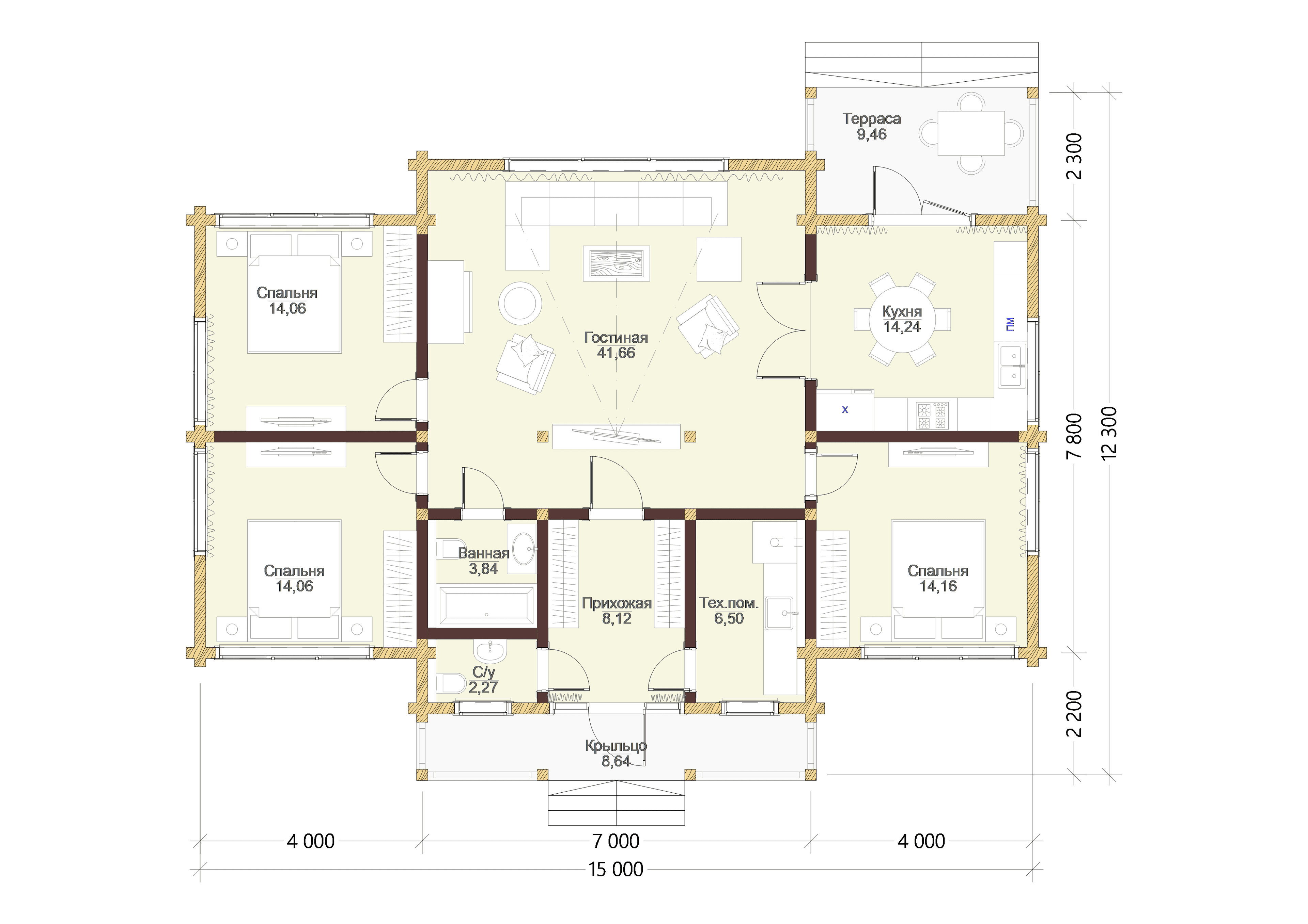
Дом из клееного бруса «Кармен» | ЭкоТех
Дом из клееного бруса «Кармен» | ЭкоТех
Застройщик: Эко-Тех
148.0 м²
1 / 2
🏠
148.0 м²
🛏
3 спален
🚿
2 санузл.
📐
1 этаж
🧱
Клееный брус
Похожие проекты
Похожие по цене
Похожие по площади
Проект U-145-1P
2 этаж
от 10 143 000 ₽
→
Проект одноэтажного коттеджа "Душистая Сирень" из газобетона
4 спальн. · 2 этаж
от 10 146 000 ₽
→
Проект одноэтажного коттеджа "Патриния" из газобетона
4 спальн. · 2 этаж
от 10 138 000 ₽
→
Проект двухэтажного каркасного дома "Титания"
3 спальн. · 2 этаж
от 10 744 165 ₽
→
Проект одноэтажного каркасного дома "Офелия2"
4 спальн. · 2 этаж
от 10 972 764 ₽
→
Дом по проекту «ЗС 968-21» - Золотое Сечение
3 спальн. · 2 санузл.
от 18 500 000 ₽
→
На сайт застройщика