Перейти к контенту
Подбор и сравнение проектов домов от застройщиков Московской области
Подборщик домов
Калькулятор сметы
Калькулятор площади
Форум
Блог
Главная
›
Каталог проектов
›
Дом из клееного бруса «Московский» | ЭкоТех
Дом из клееного бруса «Московский» | ЭкоТех
Застройщик: Эко-Тех
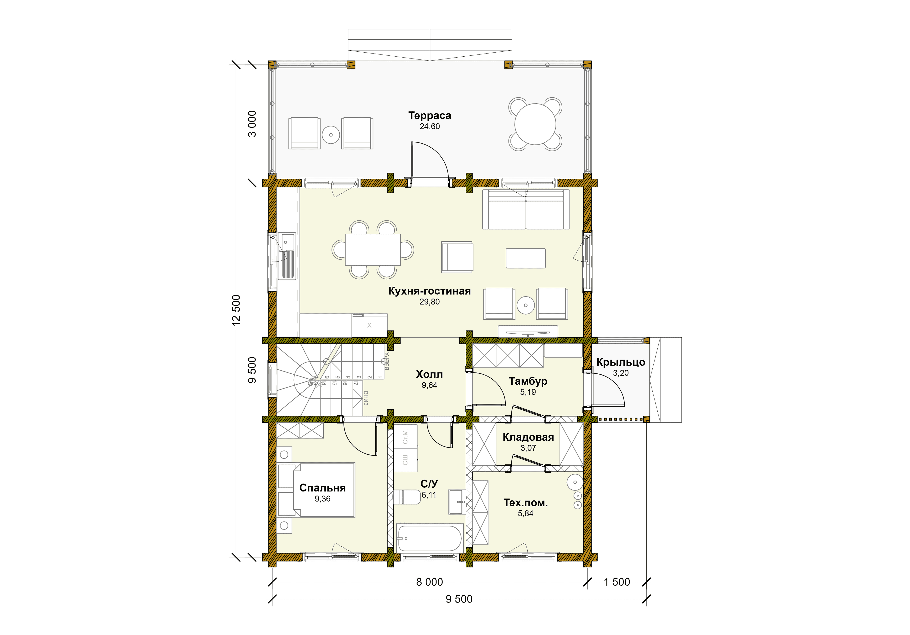
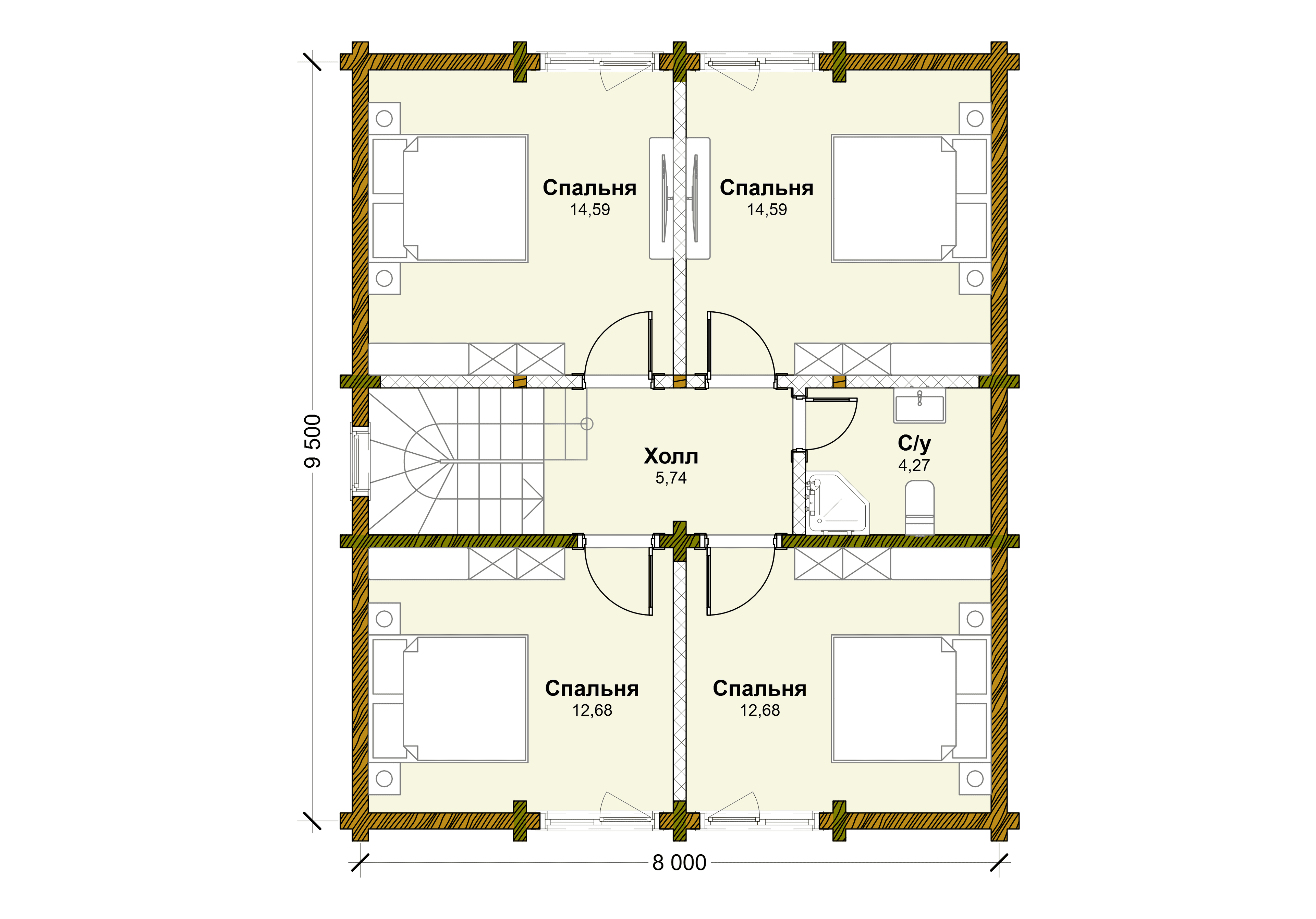
161.36 м²
1 / 3
🏠
161.36 м²
🛏
5 спален
🚿
2 санузл.
📐
2 этаж
🧱
Клееный брус
Похожие проекты
Похожие по цене
Похожие по площади
Проекты домов из газобетона Шале XL под ключ
5 спальн. · 2 санузл. · 2 этаж
от 9 900 100 ₽
→
Проект двухэтажный 11,5х12м № 346
2 этаж
от 9 902 950 ₽
→
Проект дома 11,5х12м № 346
2 этаж
от 9 902 950 ₽
→
Проект R-161-1P
2 этаж
от 11 296 600 ₽
→
Проект дома из газоблоков 11х11 ГББ-163: цена 7049000 руб.
5 спальн. · 2 санузл. · 2 этаж
от 11 210 000 ₽
→
Проект дома из керамоблоков 11х11 ТКБ-163: цена по запросу
5 спальн. · 2 санузл. · 2 этаж
от 12 230 000 ₽
→
На сайт застройщика