Перейти к контенту
Подбор и сравнение проектов домов от застройщиков Московской области
Подборщик домов
Калькулятор сметы
Калькулятор площади
Форум
Блог
Главная
›
Каталог проектов
›
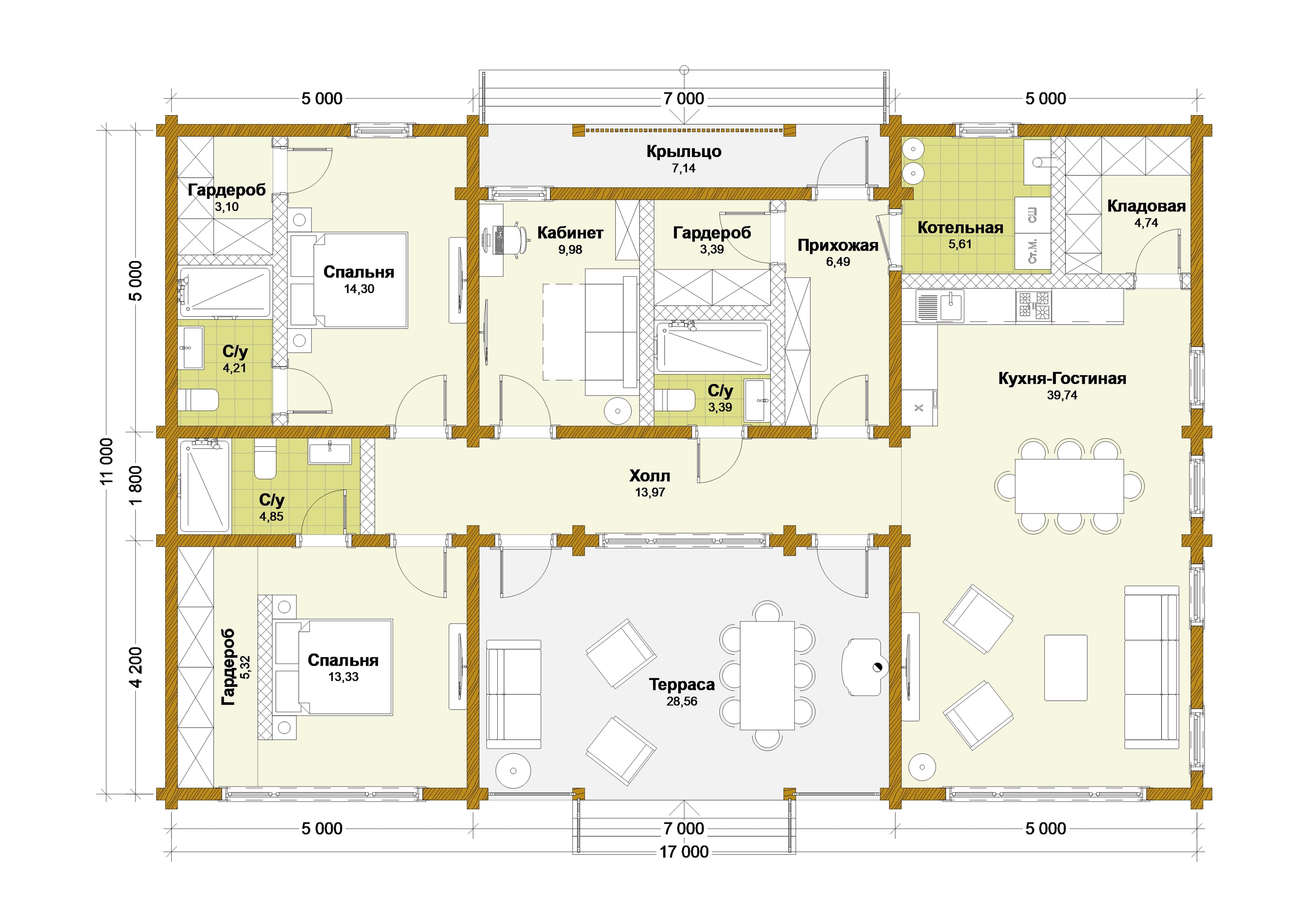
Дом из клееного бруса «Хотьково» | ЭкоТех
Дом из клееного бруса «Хотьково» | ЭкоТех
Застройщик: Эко-Тех
187.0 м²
1 / 2
🏠
187.0 м²
🛏
2 спален
🚿
3 санузл.
📐
1 этаж
🧱
Клееный брус
Похожие проекты
Похожие по цене
Похожие по площади
Проект G-172-2P
2 этаж
от 13 027 000 ₽
→
Проект G-159-1K
3 этаж
от 13 033 080 ₽
→
Проект дома «Мишонн»
4 спальн. · 2 этаж
от 13 025 000 ₽
→
Двухэтажный дом 4 спальни №355
2 этаж
от 9 563 900 ₽
→
Двухэтажный дом 4 спальни №355
2 этаж
от 9 563 900 ₽
→
Дом по проекту «ЗС 235-24» - Золотое Сечение
4 спальн. · 3 санузл.
от 23 375 000 ₽
→
На сайт застройщика