Перейти к контенту
Подбор и сравнение проектов домов от застройщиков Московской области
Подборщик домов
Калькулятор сметы
Калькулятор площади
Форум
Блог
Главная
›
Каталог проектов
›
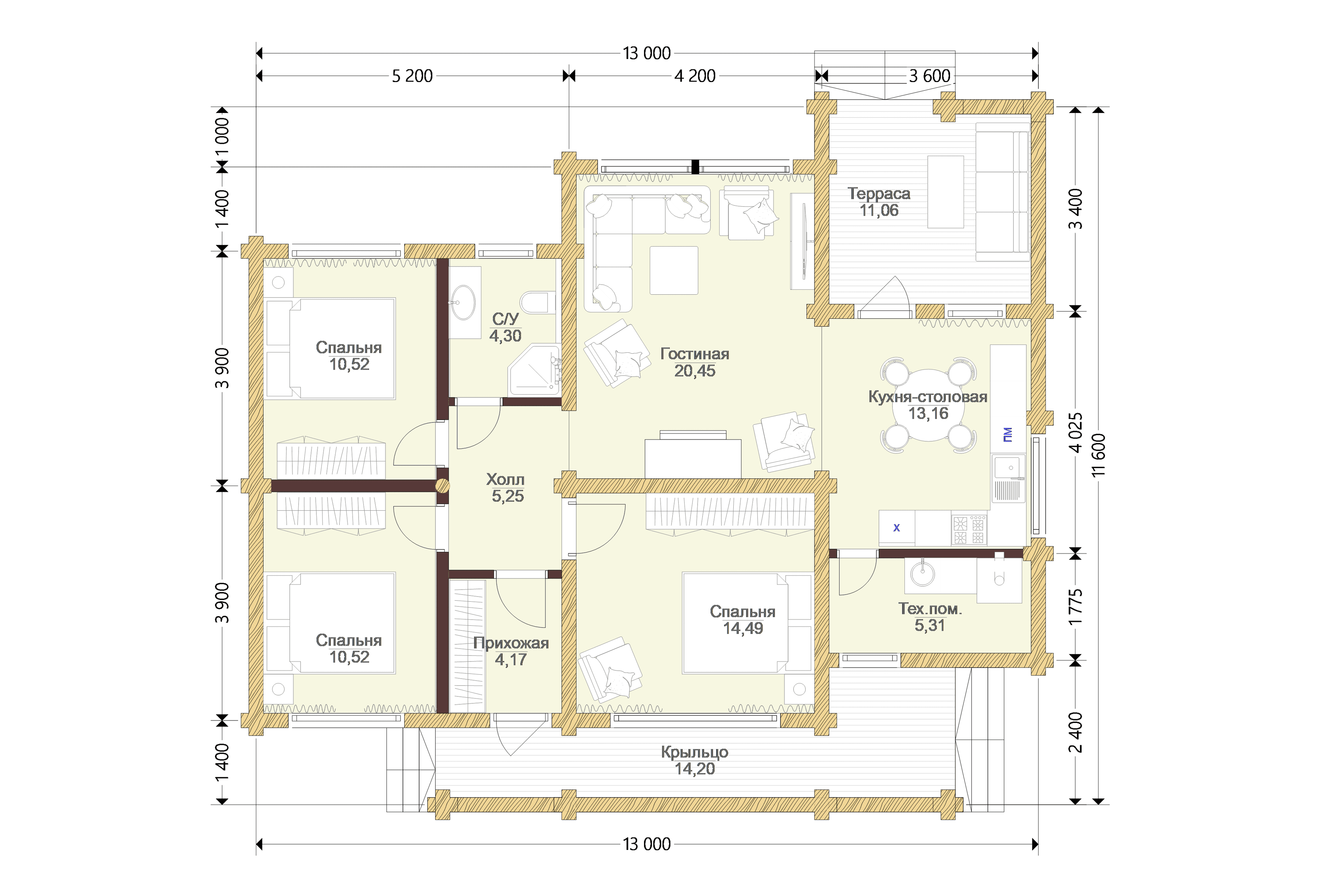
Дом из оцилиндрованного бревна «Муром» | ЭкоТех
Дом из оцилиндрованного бревна «Муром» | ЭкоТех
Застройщик: Эко-Тех
113.4 м²
1 / 2
🏠
113.4 м²
🛏
3 спален
🚿
1 санузл.
📐
1 этаж
🧱
Оцилиндрованное бревно
Похожие проекты
Похожие по цене
Похожие по площади
ПД - 186 - Строительство домов из Каркаса, СИП, Бруса под ключ
6 спальн. · 3 санузл. · 2 этаж
от 4 000 000 ₽
→
Проект К-12 9 на 7, площадью 119 за 4 016 250 руб
4 спальн. · 2 этаж
от 3 998 400 ₽
→
Проект К-72 8 на 8, площадью 119 за 4 272 000 руб
3 спальн. · 2 этаж
от 3 998 400 ₽
→
Канадец 11
4 спальн. · 2 санузл. · 2 этаж
от 3 719 800 ₽
→
Проект A-114-1P
2 этаж
от 7 949 200 ₽
→
Канадец 11
4 спальн. · 2 санузл. · 2 этаж
от 6 599 800 ₽
→
На сайт застройщика