Перейти к контенту
Подбор и сравнение проектов домов от застройщиков Московской области
Подборщик домов
Калькулятор сметы
Калькулятор площади
Форум
Блог
Главная
›
Каталог проектов
›
Дом из рубленного бревна «Фьорд» | ЭкоТех
Дом из рубленного бревна «Фьорд» | ЭкоТех
Застройщик: Эко-Тех
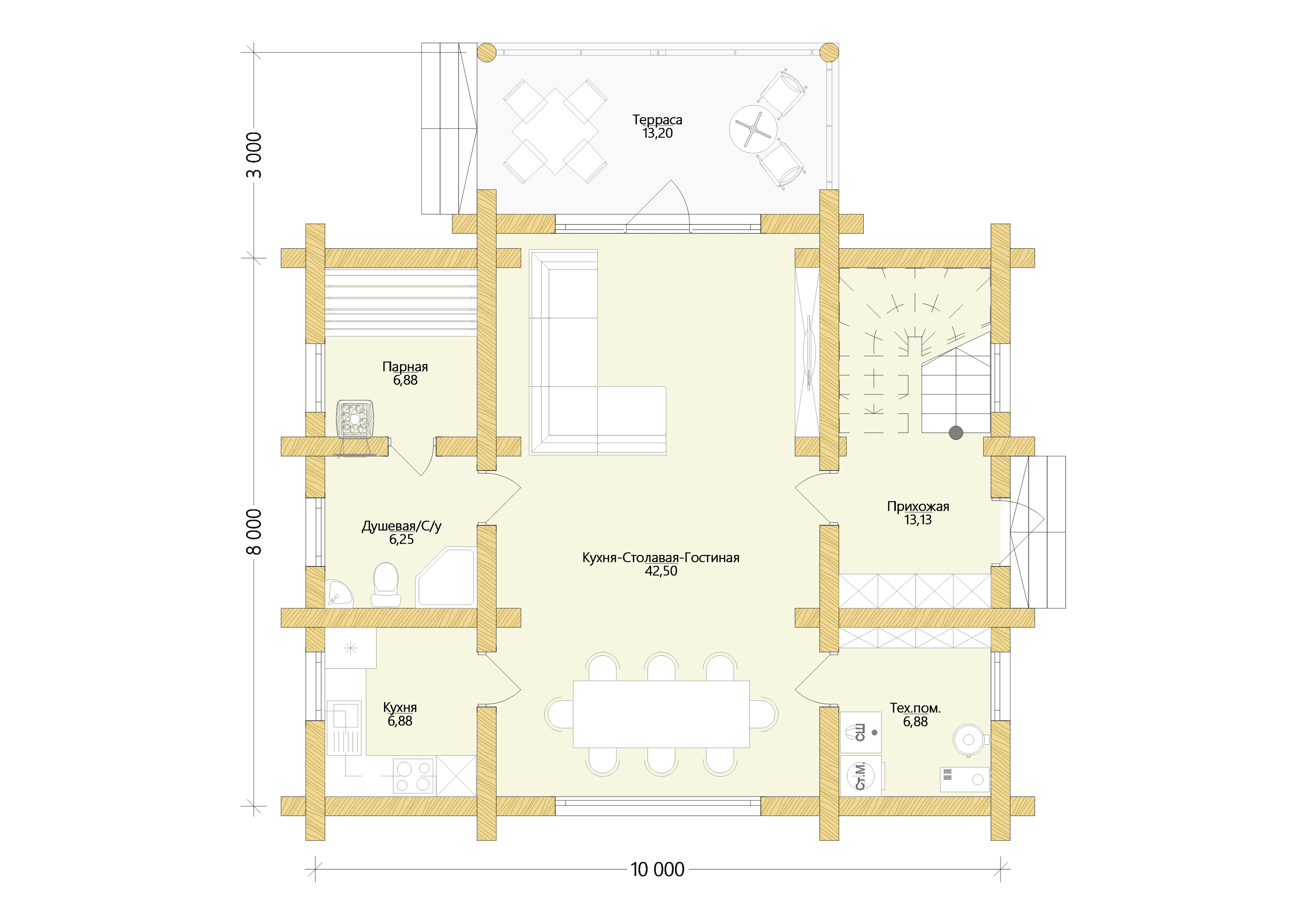
165.0 м²
1 / 3
🏠
165.0 м²
🛏
4 спален
🚿
2 санузл.
📐
2 этаж
🧱
Ручная рубка
Похожие проекты
Похожие по цене
Похожие по площади
Проект M-122-1P
2 этаж
от 8 561 000 ₽
→
Уэльс 22
2 санузл. · 2 этаж
от 8 559 800 ₽
→
Проект одноэтажного дома "Камелот" из бруса
3 спальн. · 2 этаж
от 8 559 471 ₽
→
Проект двухэтажного каркасного дома "Мальта"
2 этаж
от 12 618 679 ₽
→
Дом по проекту «ЗС 231-24» - Золотое Сечение
4 спальн. · 2 санузл.
от 20 625 000 ₽
→
Проект К-148 14 на 11, площадью 165 за 6 418 500 руб
3 спальн. · 1 этаж
от 6 418 500 ₽
→
На сайт застройщика