Перейти к контенту
Подбор и сравнение проектов домов от застройщиков Московской области
Подборщик домов
Калькулятор сметы
Калькулятор площади
Форум
Блог
Главная
›
Каталог проектов
›
Проект дома «Алексин» | ЭкоТех
Проект дома «Алексин» | ЭкоТех
Застройщик: Эко-Тех
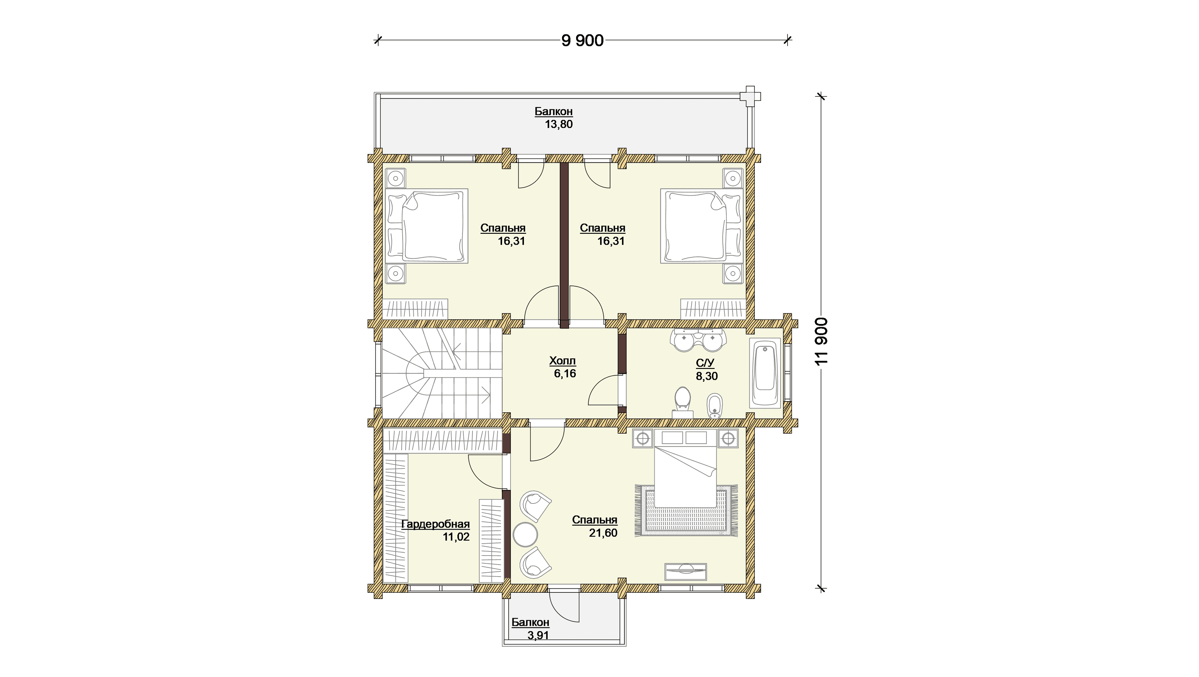
234.0 м²
1 / 3
🏠
234.0 м²
🛏
4 спален
🚿
2 санузл.
📐
2 этаж
🧱
Клееный брус
Похожие проекты
Похожие по цене
Похожие по площади
Проект дома «Харрис»
2 спальн. · 1 этаж
от 12 435 000 ₽
→
Дома из керамических блоков Бунгало XL+ под ключ
3 спальн. · 2 санузл. · 1 этаж
от 12 438 700 ₽
→
Проект H-181-2P
3 этаж
от 12 417 300 ₽
→
Проект двухэтажного каркасного дома Усадьба XXL под ключ от компании БАКО
4 спальн. · 2 санузл. · 2 этаж
от 9 114 300 ₽
→
Проект К-113 9 на 14, площадью 234 за 7 924 500 руб
4 спальн. · 2 этаж
от 7 924 500 ₽
→
Проект К-113 9 на 14, площадью 234 за 7 924 500 руб
4 спальн. · 2 этаж
от 6 552 000 ₽
→
На сайт застройщика