Перейти к контенту
Подбор и сравнение проектов домов от застройщиков Московской области
Подборщик домов
Калькулятор сметы
Калькулятор площади
Форум
Блог
Главная
›
Каталог проектов
›
Проект дома «Апрелевка» | ЭкоТех
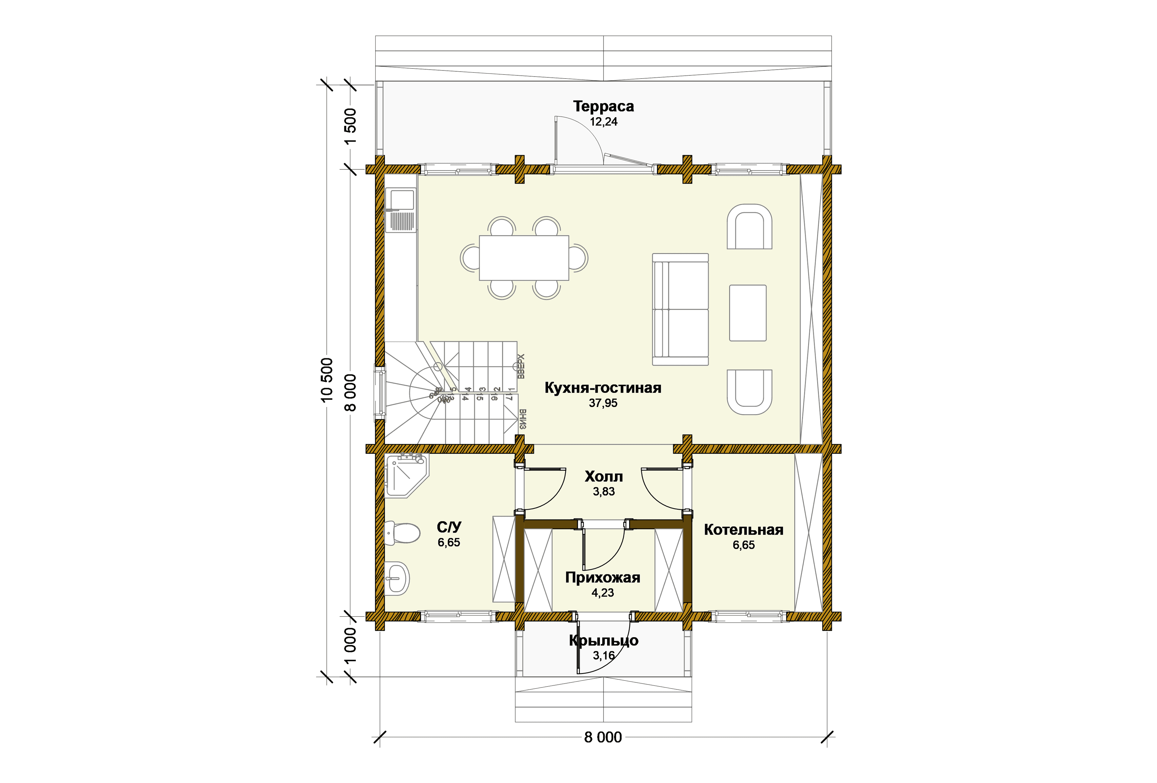
Проект дома «Апрелевка» | ЭкоТех
Застройщик: Эко-Тех
153.0 м²
1 / 3
🏠
153.0 м²
🛏
4 спален
🚿
1 санузл.
📐
2 этаж
🧱
Клееный брус
Похожие проекты
Похожие по цене
Похожие по площади
Проект К-235 12 на 12, площадью 278 за 9 342 000 руб
6 спальн. · 2 этаж
от 7 784 000 ₽
→
Традиция 12
5 спальн. · 3 санузл. · 2 этаж
от 7 784 000 ₽
→
Традиция 12
5 спальн. · 3 санузл. · 2 этаж
от 7 784 000 ₽
→
Проект двухэтажного дома "Уголок-М2" из бруса
4 спальн. · 2 этаж
от 13 040 589 ₽
→
Проект двухэтажного дома "Уголок-М3" из бруса
4 спальн. · 2 этаж
от 11 303 679 ₽
→
Двухэтажный дом 5 спален №353
2 этаж
от 10 207 555 ₽
→
На сайт застройщика