Перейти к контенту
Подбор и сравнение проектов домов от застройщиков Московской области
Подборщик домов
Калькулятор сметы
Калькулятор площади
Форум
Блог
Главная
›
Каталог проектов
›
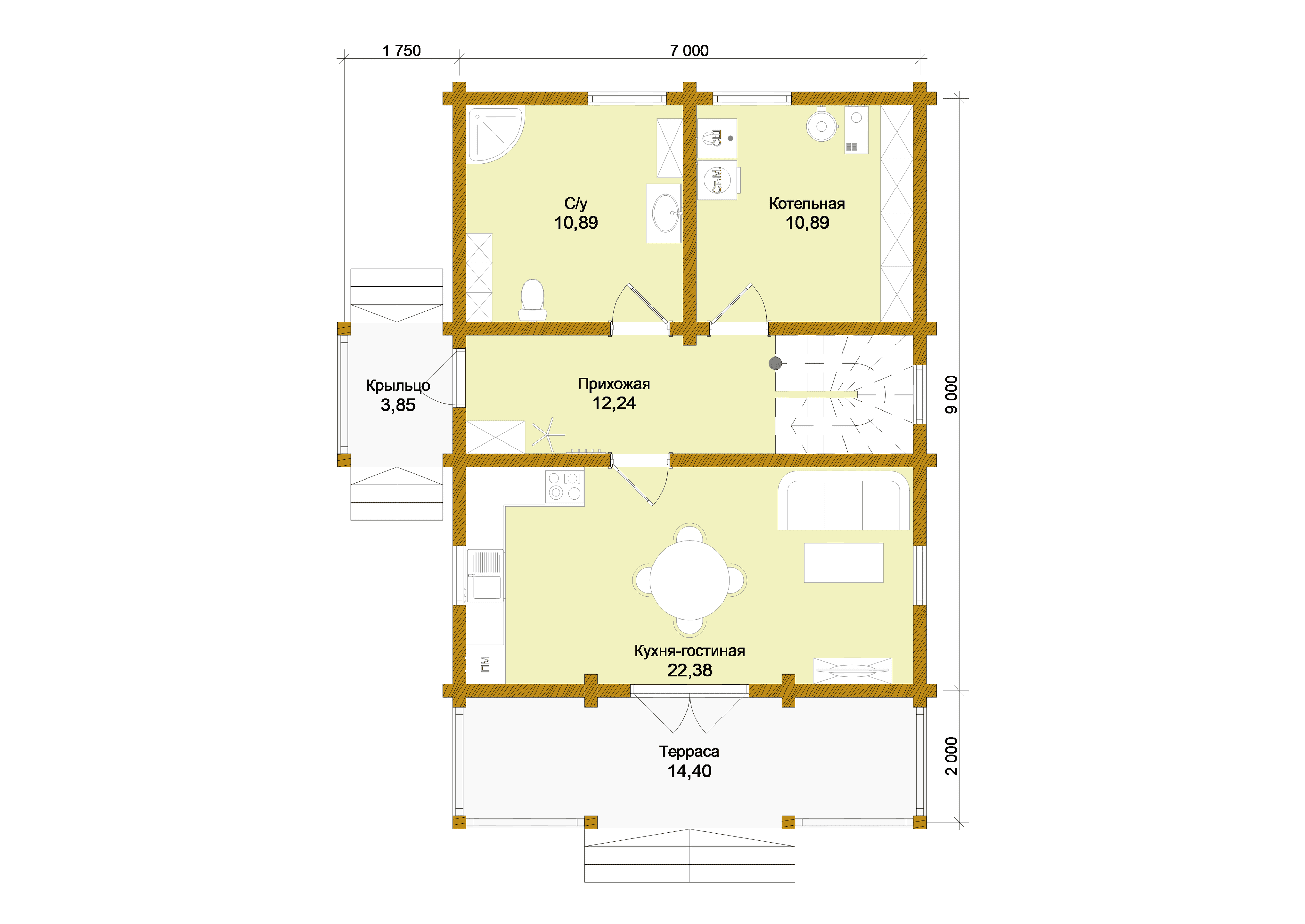
Проект дома «Бунырево» | ЭкоТех
Проект дома «Бунырево» | ЭкоТех
Застройщик: Эко-Тех
153.5 м²
1 / 3
🏠
153.5 м²
🛏
4 спален
🚿
2 санузл.
📐
2 этаж
🧱
Клееный брус
Похожие проекты
Похожие по цене
Похожие по площади
Стоун-Дом
4 спальн. · 4 санузл. · 2 этаж
от 10 495 000 ₽
→
Проект A-128-1K
2 этаж
от 10 496 000 ₽
→
Проект одноэтажного коттеджа "Марья-Искусница" из газобетона
3 спальн. · 2 этаж
от 10 497 000 ₽
→
Проект V-153-1P
3 этаж
от 10 745 000 ₽
→
Проект R-235-1K
2 этаж
от 12 586 180 ₽
→
Проект одноэтажного дома "Пуршево" из бруса
2 спальн. · 2 этаж
от 10 677 203 ₽
→
На сайт застройщика