Перейти к контенту
Подбор и сравнение проектов домов от застройщиков Московской области
Подборщик домов
Калькулятор сметы
Калькулятор площади
Форум
Блог
Главная
›
Каталог проектов
›
Проект дома «Заречье» | ЭкоТех
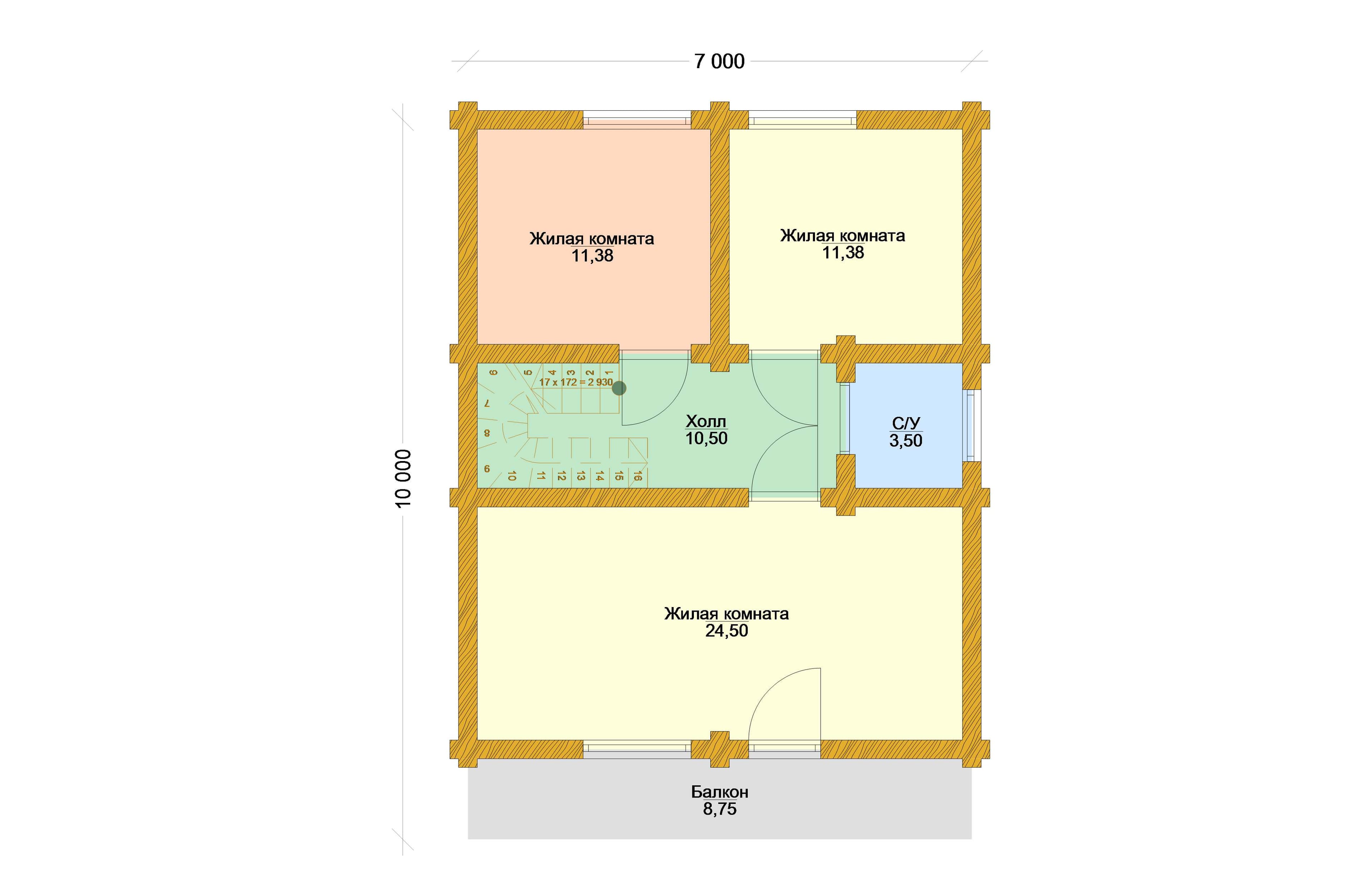
Проект дома «Заречье» | ЭкоТех
Застройщик: Эко-Тех
143.0 м²
1 / 3
🏠
143.0 м²
🛏
3 спален
🚿
2 санузл.
📐
2 этаж
🧱
Оцилиндрованное бревно
Похожие проекты
Похожие по цене
Похожие по площади
Дом «Щербаков» 7х9 м
4 спальн. · 2 этаж
от 4 330 000 ₽
→
Мечта 8
2 этаж
от 4 339 800 ₽
→
Дом «Алексеев» 8х11,5 м
2 спальн. · 1 этаж
от 4 340 000 ₽
→
Проект двухэтажного дома "Ветерок" из бруса
6 спальн. · 2 этаж
от 12 205 352 ₽
→
Проект одноэтажного дома "Сапожок-2" из бруса
2 спальн. · 2 этаж
от 10 240 463 ₽
→
Дом 3 спальни 2 санузла №366
2 этаж
от 8 029 050 ₽
→
На сайт застройщика