Перейти к контенту
Подбор и сравнение проектов домов от застройщиков Московской области
Подборщик домов
Калькулятор сметы
Калькулятор площади
Форум
Блог
Главная
›
Каталог проектов
›
Проект дома «Красногорск» | ЭкоТех
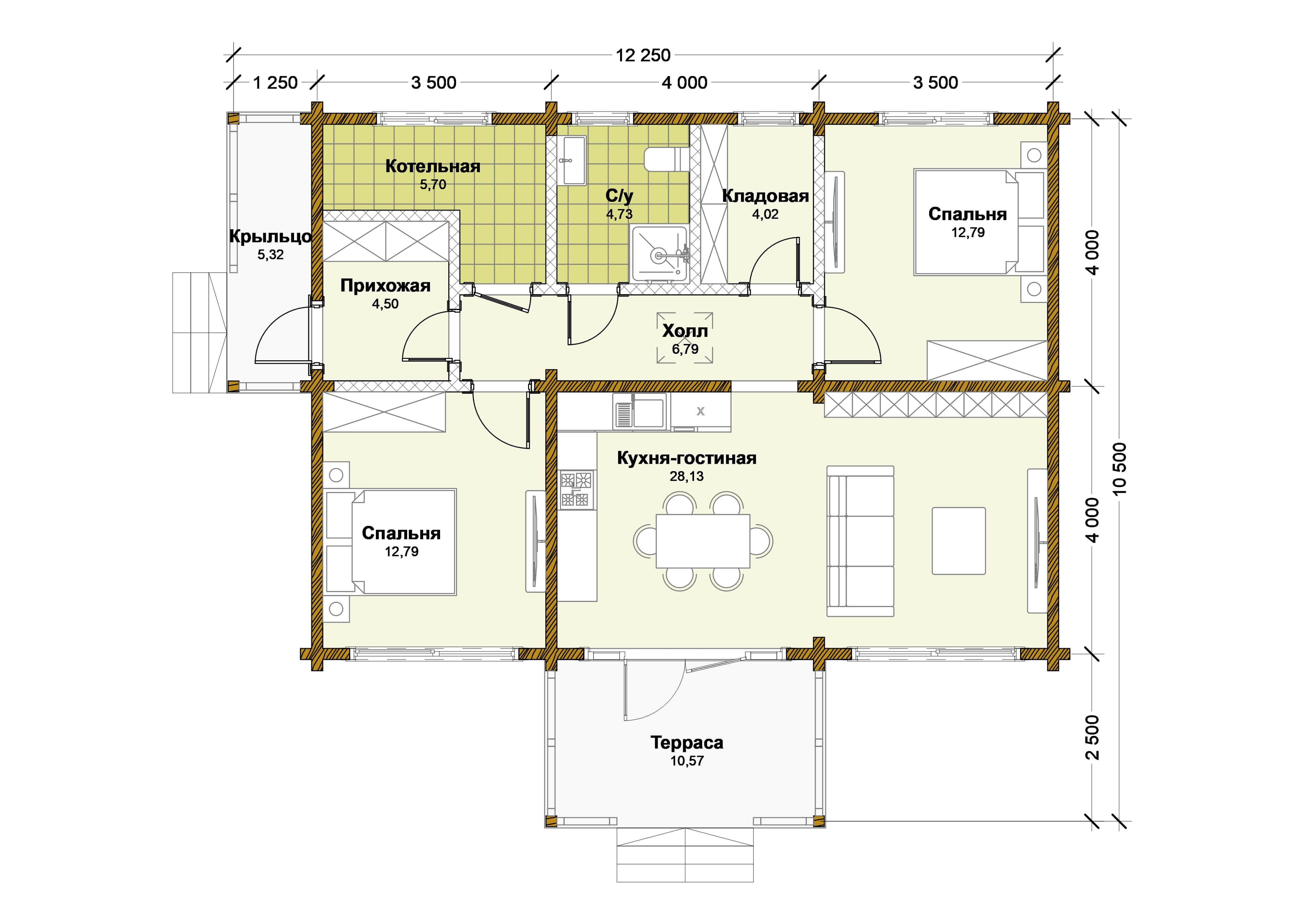
Проект дома «Красногорск» | ЭкоТех
Застройщик: Эко-Тех
103.0 м²
1 / 2
🏠
103.0 м²
🛏
2 спален
🚿
1 санузл.
📐
1 этаж
🧱
Клееный брус
Похожие проекты
Похожие по цене
Похожие по площади
Проект одноэтажного коттеджа "Незабудка" из газобетона
3 спальн. · 2 этаж
от 7 849 000 ₽
→
Проект дома M-112-1P
2 этаж
от 7 847 000 ₽
→
Проект каркасного дома КП-111
1 этаж
от 7 850 000 ₽
→
Проект одноэтажного дома "Скандик-3" из бруса
4 спальн. · 2 этаж
от 6 946 500 ₽
→
Строительство каркасного дома 12х9 "Лаура" под ключ
5 спальн. · 1 санузл. · 2 этаж
от 4 206 000 ₽
→
Каркасный дом 8x13 Проект "Сфен"
2 спальн. · 1 санузл. · 1 этаж
от 3 192 000 ₽
→
На сайт застройщика