Перейти к контенту
Подбор и сравнение проектов домов от застройщиков Московской области
Подборщик домов
Калькулятор сметы
Калькулятор площади
Форум
Блог
Главная
›
Каталог проектов
›
Проект дома «Ногинск» | ЭкоТех
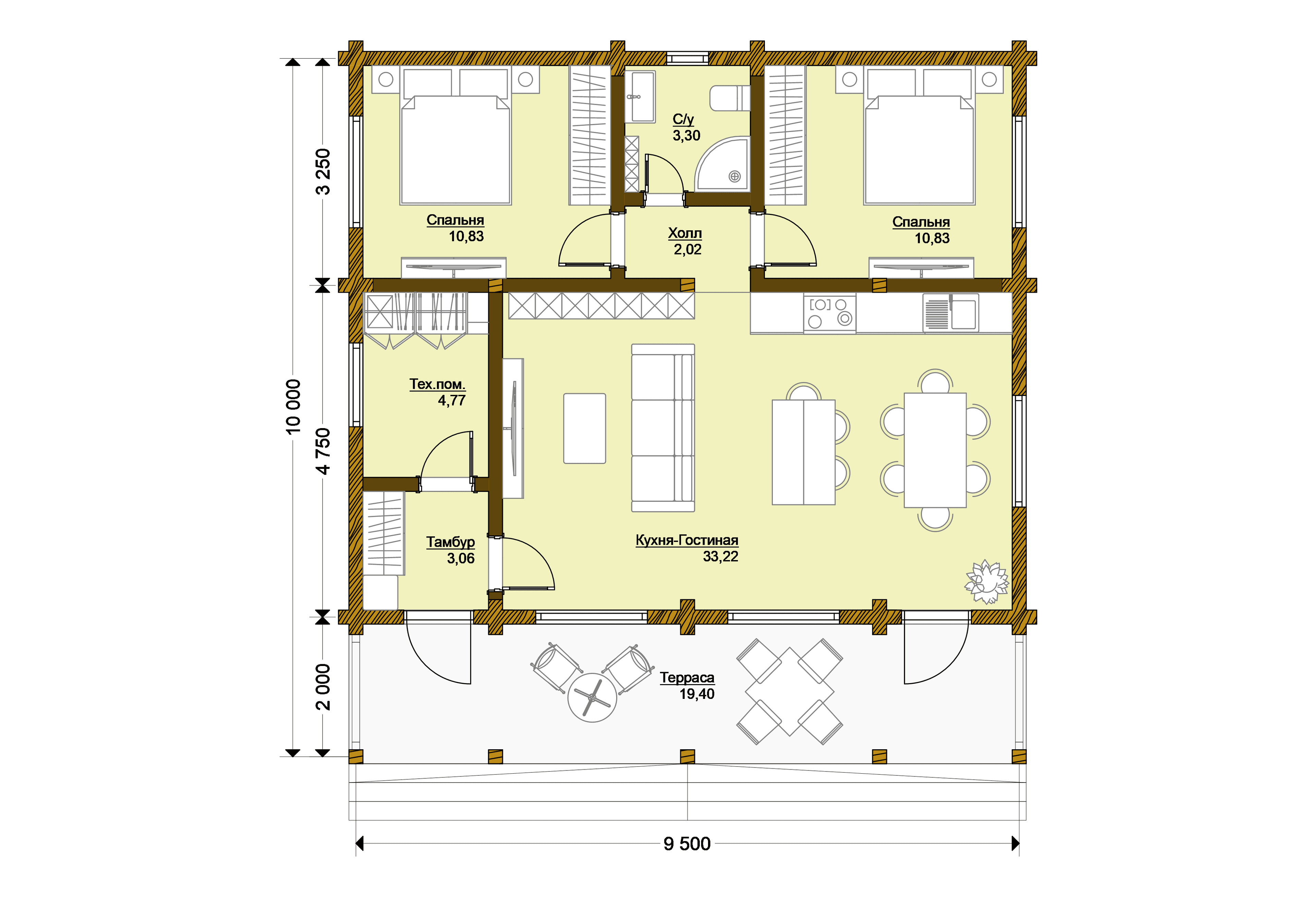
Проект дома «Ногинск» | ЭкоТех
Застройщик: Эко-Тех
95.0 м²
1 / 2
🏠
95.0 м²
🛏
2 спален
🚿
1 санузл.
📐
1 этаж
🧱
Клееный брус
Похожие проекты
Похожие по цене
Похожие по площади
Дом из клееного бруса «Краснодар» | ЭкоТех
2 спальн. · 1 санузл. · 1 этаж
от 5 456 000 ₽
→
Проект К-69 14 на 10, площадью 136 за 5 457 000 руб
3 спальн. · 1 этаж
от 5 457 000 ₽
→
Проект К-99 14 на 10, площадью 136 за 5 457 000 руб
3 спальн. · 1 этаж
от 5 457 000 ₽
→
Проект одноэтажного каркасного дома "Вольф"
3 спальн. · 2 этаж
от 6 903 697 ₽
→
Строительство каркасного дома 9х6 "Ларион" под ключ
4 спальн. · 1 санузл. · 2 этаж
от 3 829 000 ₽
→
Проект одноэтажного дома с террасой Bungalo-95 м² из газоблока — Домострой
3 спальн. · 1 санузл. · 1 этаж
от 8 335 000 ₽
→
На сайт застройщика