Перейти к контенту
Подбор и сравнение проектов домов от застройщиков Московской области
Подборщик домов
Калькулятор сметы
Калькулятор площади
Форум
Блог
Главная
›
Каталог проектов
›
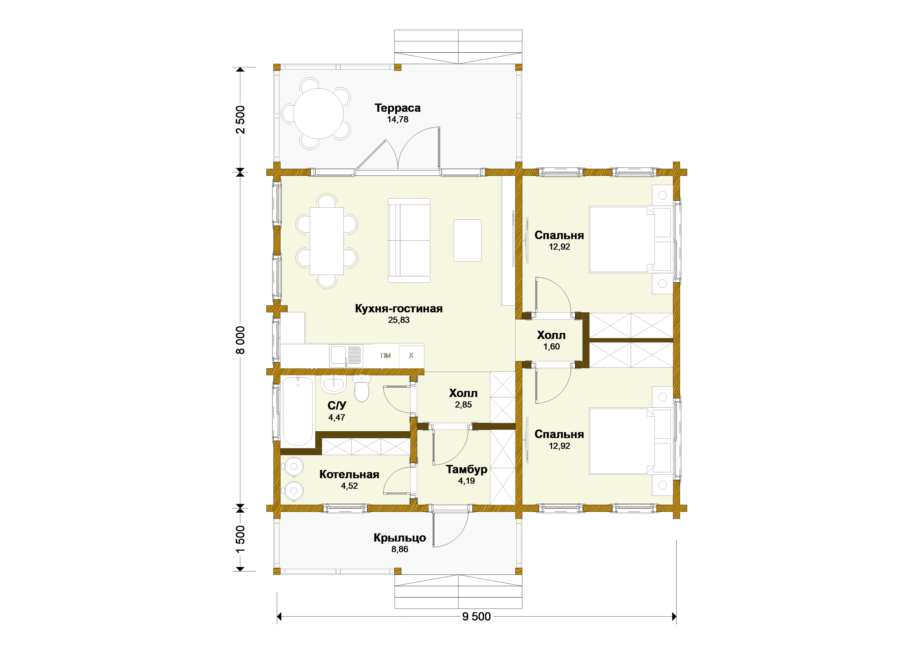
Проект дома «Первомайск» | ЭкоТех
Проект дома «Первомайск» | ЭкоТех
Застройщик: Эко-Тех
99.0 м²
1 / 2
🏠
99.0 м²
🛏
2 спален
🚿
1 санузл.
📐
1 этаж
🧱
Клееный брус
Похожие проекты
Похожие по цене
Похожие по площади
Проект двухэтажного коттеджа "Мезонин" из газобетона
3 спальн. · 2 этаж
от 6 113 000 ₽
→
Варяг 6
2 этаж
от 6 113 000 ₽
→
Варяг 6
2 этаж
от 6 113 000 ₽
→
Проект двухэтажного каркасного дома "Диш"
3 спальн. · 2 этаж
от 7 269 456 ₽
→
Проект двухэтажного каркасного дома "Швец"
3 спальн. · 2 этаж
от 7 539 203 ₽
→
Проект одноэтажного каркасного дома "Зена"
4 спальн. · 2 этаж
от 7 440 906 ₽
→
На сайт застройщика