Перейти к контенту
Подбор и сравнение проектов домов от застройщиков Московской области
Подборщик домов
Калькулятор сметы
Калькулятор площади
Форум
Блог
Главная
›
Каталог проектов
›
Проект дома «Синдика» | ЭкоТех
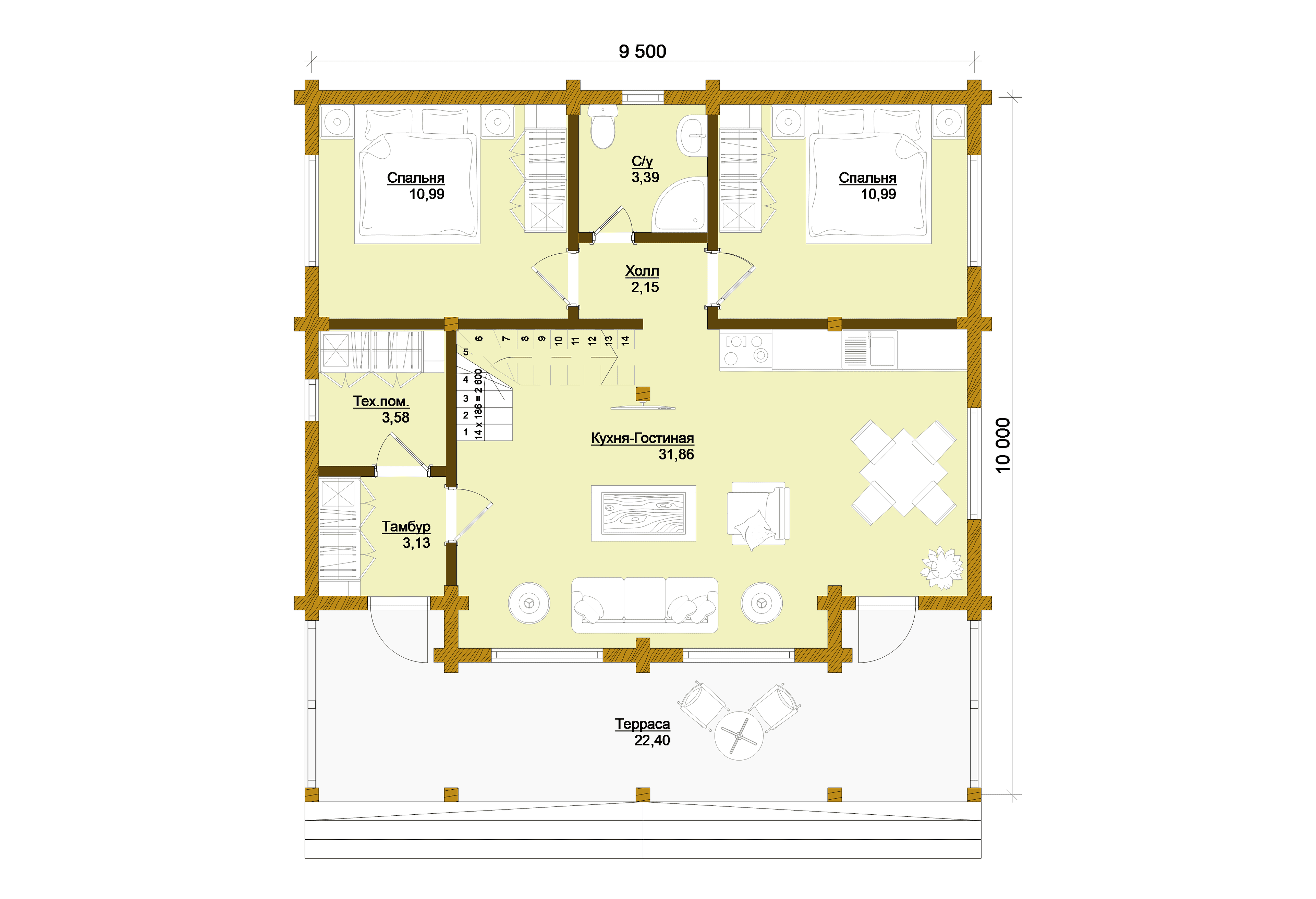
Проект дома «Синдика» | ЭкоТех
Застройщик: Эко-Тех
116.0 м²
1 / 3
🏠
116.0 м²
🛏
3 спален
🚿
1 санузл.
📐
2 этаж
🧱
Клееный брус
Похожие проекты
Похожие по цене
Похожие по площади
Проект дома из газоблоков 14х10 ГББ-105: цена 6470000 руб.
2 спальн. · 1 санузл. · 1 этаж
от 7 298 000 ₽
→
Проект каркасного дома КП-77.2
1 этаж
от 7 300 000 ₽
→
Проект T-086-1K
2 этаж
от 7 289 800 ₽
→
Проект одноэтажного дома "Булава (одноэтажный)" из бруса
1 спальн. · 1 этаж
от 9 147 148 ₽
→
Проект одноэтажного дома "Золотой ключик-2" из бруса
2 спальн. · 2 этаж
от 8 380 936 ₽
→
Проект одноэтажного дома "Опалево-М1" из бруса
5 спальн. · 2 этаж
от 9 719 832 ₽
→
На сайт застройщика