Перейти к контенту
Подбор и сравнение проектов домов от застройщиков Московской области
Подборщик домов
Калькулятор сметы
Калькулятор площади
Форум
Блог
Главная
›
Каталог проектов
›
Проект дома «Скандинавия» | ЭкоТех
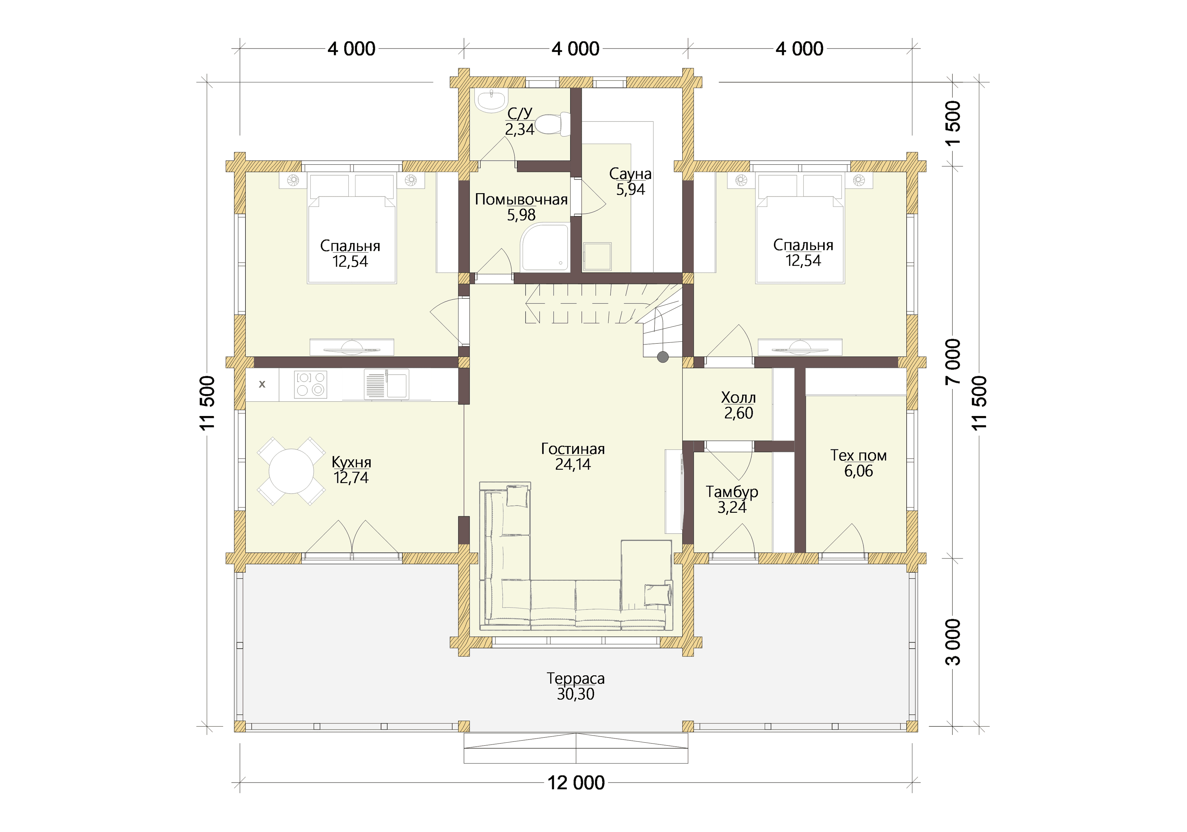
Проект дома «Скандинавия» | ЭкоТех
Застройщик: Эко-Тех
141.0 м²
1 / 3
🏠
141.0 м²
🛏
3 спален
🚿
1 санузл.
📐
2 этаж
🧱
Клееный брус
Похожие проекты
Похожие по цене
Похожие по площади
Проект одноэтажного дома "Басня" из бруса
4 спальн. · 2 этаж
от 9 422 190 ₽
→
Дом из газобетона ГББ-134
3 спальн. · 2 санузл. · 1 этаж
от 9 420 000 ₽
→
Проект W-115-1K
1 этаж
от 9 430 000 ₽
→
Проект одноэтажного каркасного дома "Офелия"
3 спальн. · 2 этаж
от 10 401 266 ₽
→
Проект одноэтажного каркасного дома "Офелия3"
3 спальн. · 2 этаж
от 10 401 266 ₽
→
Проект К-11 8 на 8, площадью 141 за 4 623 000 руб
2 спальн. · 2 этаж
от 4 623 000 ₽
→
На сайт застройщика