Перейти к контенту
Подбор и сравнение проектов домов от застройщиков Московской области
Подборщик домов
Калькулятор сметы
Калькулятор площади
Форум
Блог
Главная
›
Каталог проектов
›
Проект дома «Сколково» | ЭкоТех
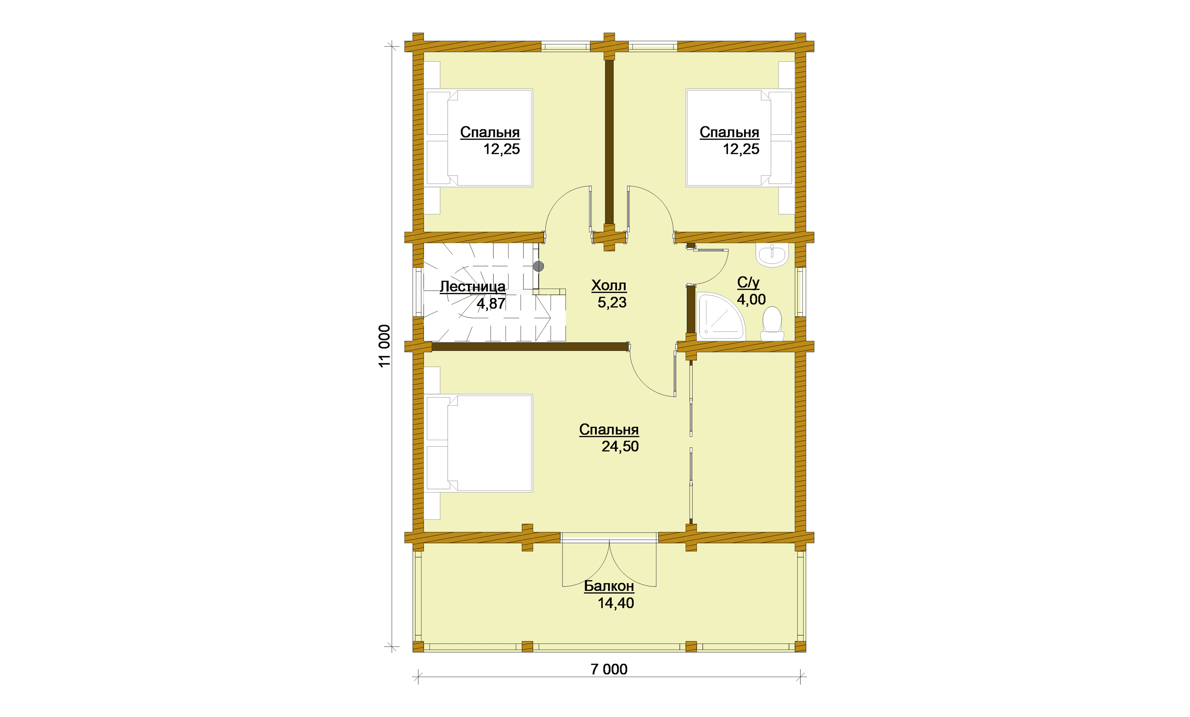
Проект дома «Сколково» | ЭкоТех
Застройщик: Эко-Тех
154.0 м²
1 / 3
🏠
154.0 м²
🛏
3 спален
🚿
2 санузл.
📐
2 этаж
🧱
Клееный брус
Похожие проекты
Похожие по цене
Похожие по площади
Проекты домов из газобетона Бунгало S+ под ключ
2 спальн. · 1 санузл. · 1 этаж
от 8 527 300 ₽
→
Дома из керамических блоков Тетрис S под ключ
3 спальн. · 2 санузл. · 2 этаж
от 8 527 600 ₽
→
Проект T-121-1P
2 этаж
от 8 526 000 ₽
→
Каркасный дом «Всеволожск
от 11 990 000 ₽
→
Проект К-118 10 на 8, площадью 154 за 5 178 000 руб
3 спальн. · 2 этаж
от 5 178 000 ₽
→
Проект К-118 10 на 8, площадью 154 за 5 178 000 руб
3 спальн. · 2 этаж
от 4 312 000 ₽
→
На сайт застройщика